
Befektetési Lehetőség Miskolcon: 296 m2-es, Két Szintes Inga
ÁRCSÖKKENÉS!Régi ár: 74.9 M Új ár: 69.9 MMiskolcon, a Testvérvárosok útján
eladó egy kiváló elhelyezkedésű, két szintes, összesen 296 m˛-es ingatlan, amely
jelenleg is működő kondicionáló és fitneszteremként üzemel. Ideális befektetés,
hiszen egyedi megállapodás alapján akár a jelenlegi bérlő is maradhat,
biztosítva az azonnali bevételt. Az épület rugalmasan alakítható, így számos
egyéb üzleti célra is alkalmas (pl. irodák, orvosi rendelő, szépségszalon,
oktatási központ).Kérjük, vegye figyelembe, hogy az ingatlan vételára nem
tartalmazza a képeken látható berendezéseket és felszereléseket, azok a
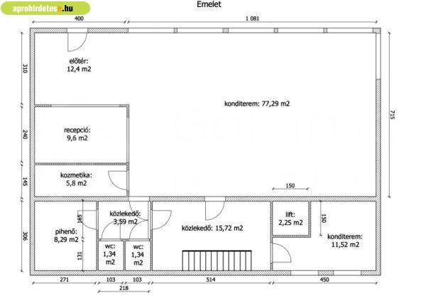
jelenlegi bérlő tulajdonát képezik.Helyiséglista:Emelet:-Funkcionális területek:
Tágas konditerem, recepció, kozmetika, pihenő.-Kiszolgáló helyiségek: Előtér,
közlekedő, 2 db WC.Megjegyzés: A lift jelenleg üzemen kívül
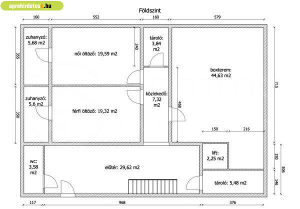
van.Földszint:-Sportolói területek: Bokszterem, női és férfi öltözők
zuhanyzókkal.-Kiszolgáló helyiségek: Előtér, közlekedő, WC, 2 db
tároló.Környezet:Az ingatlan Miskolc népszerű, forgalmas részén, az Avas
városrészben I ütemében található, közvetlenül a Testvérvárosok útján lévő
üzletházban. Panelépítésű társasházak között elhelyezkedő épület, melyben
irodák, lakások és üzletek is működnek, kiváló ügyfélbázist és állandó
látogatottságot biztosít.Közlekedés:Az ingatlan kitűnően megközelíthető autóval
és helyi tömegközlekedéssel egyaránt. Az aszfaltozott út közvetlenül az
épülethez vezet, biztosítva a problémamentes rakodást.A parkolás ingyenes.
eladó egy kiváló elhelyezkedésű, két szintes, összesen 296 m˛-es ingatlan, amely
jelenleg is működő kondicionáló és fitneszteremként üzemel. Ideális befektetés,
hiszen egyedi megállapodás alapján akár a jelenlegi bérlő is maradhat,
biztosítva az azonnali bevételt. Az épület rugalmasan alakítható, így számos
egyéb üzleti célra is alkalmas (pl. irodák, orvosi rendelő, szépségszalon,
oktatási központ).Kérjük, vegye figyelembe, hogy az ingatlan vételára nem
tartalmazza a képeken látható berendezéseket és felszereléseket, azok a
jelenlegi bérlő tulajdonát képezik.Helyiséglista:Emelet:-Funkcionális területek:
Tágas konditerem, recepció, kozmetika, pihenő.-Kiszolgáló helyiségek: Előtér,
közlekedő, 2 db WC.Megjegyzés: A lift jelenleg üzemen kívül
van.Földszint:-Sportolói területek: Bokszterem, női és férfi öltözők
zuhanyzókkal.-Kiszolgáló helyiségek: Előtér, közlekedő, WC, 2 db
tároló.Környezet:Az ingatlan Miskolc népszerű, forgalmas részén, az Avas
városrészben I ütemében található, közvetlenül a Testvérvárosok útján lévő
üzletházban. Panelépítésű társasházak között elhelyezkedő épület, melyben
irodák, lakások és üzletek is működnek, kiváló ügyfélbázist és állandó
látogatottságot biztosít.Közlekedés:Az ingatlan kitűnően megközelíthető autóval
és helyi tömegközlekedéssel egyaránt. Az aszfaltozott út közvetlenül az
épülethez vezet, biztosítva a problémamentes rakodást.A parkolás ingyenes.
Részletek...
Adatlap
| Ár: | 69.900.000 Ft |
| Település: | Miskolc |
| A hirdető: | Ingatlanirodáktól |
| Értékesítés típusa: | Eladó |
| Tipus: | Üzlet |
| Épület hasznos területe (m2) : | 296.00 |
| Ingatlan állapota: | Normál állapotú |
| Feladás dátuma: | 2026.04.14 |
| Eddig megtekintették 44 alkalommal | |
A hirdető adatai
Kapcsolat a hirdetővel...
Eladó üzleti ingatlanok rovaton belül a(z) "Befektetési Lehetőség Miskolcon: 296 m2-es, Két Szintes Inga" című hirdetést látja. (fent)









