
Az épülő Kalocsa-Paks Duna-híd közelében kiválló befektetési
Az újonnan átadott Tomori Pál Duna-híd mellett mely Kalocsát és Paksot köti
össze, valamint a Kalocsai Repülőtér szomszédságában található ez a több célra
is hasznosítható három szintes épület. Kiváló lehetőség befektetőknek, mert az
ország legdinamikusabban fejlődő területén, a Paksi Atomerőmű beruházásának
közelében található. Az ingatlan alkalmas irodaház és lakások kialakítására,
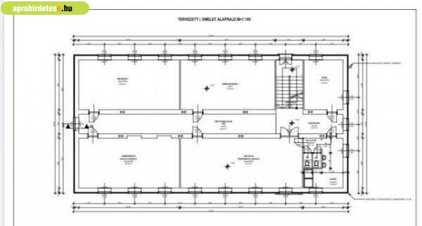
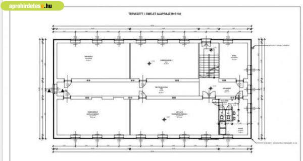
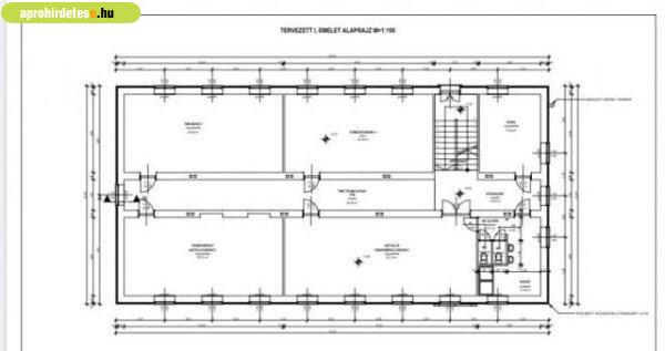
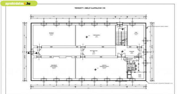
valamint munkásszállásnak ipari létesítményekhez. Eredeti állapotában 42 szoba
volt az épületben. Az épületnek a csapadék víz elvezetése megoldott. A
nyílászárók cseréje megtörtént. A födém és a tetőszerkezet állapota megfelelő.
Az épület jó műszaki állapotát a jelenlegi felújítás biztosítja. Környezete
rendezett, környező ingatlanok ipari jellegűek, illetve zöldmezős beruházásra
alkalmas területek. Kalocsa város központjától 4,5 km-re található. Vízellátás
közműhálózatról a szennyvízelvezetés zárt gyűjtőbe történik. Elektromos áram:
220/380 volt. Riasztó, tűzjelző van az épületben. Tűzcsap az épületen kívül. A
körülötte lévő utak szilárd burkolatúak. Szemét szállítás hetente egy alkalommal
történik. A parkolási lehetőség az utcafronton és a telken belül megoldott. Az
épület megközelíthető az M6,6 és az 51-s főútról. Szennyvízelvezetés és az
internet hálózat kiépült. 100 méteren belül 2 db nagyteljesítményű tűzcsap van.
össze, valamint a Kalocsai Repülőtér szomszédságában található ez a több célra
is hasznosítható három szintes épület. Kiváló lehetőség befektetőknek, mert az
ország legdinamikusabban fejlődő területén, a Paksi Atomerőmű beruházásának
közelében található. Az ingatlan alkalmas irodaház és lakások kialakítására,
valamint munkásszállásnak ipari létesítményekhez. Eredeti állapotában 42 szoba
volt az épületben. Az épületnek a csapadék víz elvezetése megoldott. A
nyílászárók cseréje megtörtént. A födém és a tetőszerkezet állapota megfelelő.
Az épület jó műszaki állapotát a jelenlegi felújítás biztosítja. Környezete
rendezett, környező ingatlanok ipari jellegűek, illetve zöldmezős beruházásra
alkalmas területek. Kalocsa város központjától 4,5 km-re található. Vízellátás
közműhálózatról a szennyvízelvezetés zárt gyűjtőbe történik. Elektromos áram:
220/380 volt. Riasztó, tűzjelző van az épületben. Tűzcsap az épületen kívül. A
körülötte lévő utak szilárd burkolatúak. Szemét szállítás hetente egy alkalommal
történik. A parkolási lehetőség az utcafronton és a telken belül megoldott. Az
épület megközelíthető az M6,6 és az 51-s főútról. Szennyvízelvezetés és az
internet hálózat kiépült. 100 méteren belül 2 db nagyteljesítményű tűzcsap van.
Részletek...
Adatlap
| Ár: | 98.000.000 Ft |
| Település: | Kalocsa |
| A hirdető: | Ingatlanirodáktól |
| Értékesítés típusa: | Eladó |
| Tipus: | Iroda, irodaház |
| Utca: | Foktő külterület Repülőtér - Ipari park |
| Telek nagysága (m2) : | 1586 |
| Épület hasznos területe (m2) : | 936.00 |
| Szobák száma: | 22 |
| Ingatlan állapota: | Normál állapotú |
| Feladás dátuma: | 2026.04.14 |
| Eddig megtekintették 66 alkalommal | |
A hirdető adatai
Kapcsolat a hirdetővel...
Eladó üzleti ingatlanok rovaton belül a(z) "Az épülő Kalocsa-Paks Duna-híd közelében kiválló befektetési" című hirdetést látja. (fent)









