
Eladó 26 m2 iroda, Zubogy
Zubogyban, Miskolctól 41 kilométerre északra található településen, eladó egy
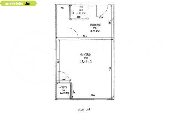
26 m2-es üzlethelyiség. Ár: 2.185.000,- Ft + Áfa.Helyiség lista:- ügyféltér-
előtér- közlekedő- WC.Műszaki leírás:A kínált ingatlan egy földszint tagolódású
épületben található. Közös épületet alakít egy élelmiszer bolttal. Felmenő
falazata tégla, födéme vasbeton födém. Homlokzata hőszigetelt nemes vakolattal
ellátott. Homlokzati nyílászárói műanyag szerkezetű ablakok, hőszigetelt
üvegezéssel. Fűtését és melegvíz-ellátását kombi gázkazán biztosítja. A burkolat
minden helyiségben kerámia, a falak festettek.Környezet:Az ingatlan a település
északi részén, családi házak és egyéb szolgáltató egységek környezetében
található.
26 m2-es üzlethelyiség. Ár: 2.185.000,- Ft + Áfa.Helyiség lista:- ügyféltér-
előtér- közlekedő- WC.Műszaki leírás:A kínált ingatlan egy földszint tagolódású
épületben található. Közös épületet alakít egy élelmiszer bolttal. Felmenő
falazata tégla, födéme vasbeton födém. Homlokzata hőszigetelt nemes vakolattal
ellátott. Homlokzati nyílászárói műanyag szerkezetű ablakok, hőszigetelt
üvegezéssel. Fűtését és melegvíz-ellátását kombi gázkazán biztosítja. A burkolat
minden helyiségben kerámia, a falak festettek.Környezet:Az ingatlan a település
északi részén, családi házak és egyéb szolgáltató egységek környezetében
található.
Részletek...
Adatlap
| Ár: | 2.185.000 Ft |
| Település: | Zubogy |
| A hirdető: | Ingatlanirodáktól |
| Értékesítés típusa: | Eladó |
| Tipus: | Iroda, irodaház |
| Épület hasznos területe (m2) : | 26.00 |
| Szobák száma: | 1 |
| Fűtés: | Házközponti fűtéses (egyedi méréssel) |
| Ingatlan állapota: | Felújítandó |
| Feladás dátuma: | 2026.01.24 |
| Eddig megtekintették 35 alkalommal | |
A hirdető adatai
Kapcsolat a hirdetővel...
Eladó üzleti ingatlanok rovaton belül a(z) "Eladó 26 m2 iroda, Zubogy" című hirdetést látja. (fent)









