
Eladó 600 nm-es Üzlet Újlengyel
Budapesttől 25 percre, Újlengyelben eladó, egy központi helyen lévő KIVÉTELES
INGATLAN, ami 600 nm-es épület, 1396 nm-es telekkel. Az épület alkalmas
Vendéglőnek, Lakodalmas háznak, Discónak vagy akár átalakítható egy hatalmas
munkásszállásnak! Jelen pillanatban most is üzemel minimálisan vendéglőként. A
ház szép zöld övezetben, nyugodt csendes utcában van. A ház 1980-es évek elején
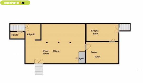
épült, beton alappal és tégla falazattal. A rengeteg kis és nagy helyiség van.
Több terem méretű helyiség, ipari méretű konyha, tároló, hűtőkamra, alagsori
hatalmas bulihelyiség bárpulttal, egy komplett vendéglő még egy bárpulttal, két
külön épület ami pluszban kialakítható lakrészeknek, hatalmas terasz és több
mellékhelyiség kívül belül, valamint egy fürdőszoba. Az épület a méretéből
adódóan megosztható, így további lehetőségeket rejtve magában. Bátran ajánlom
vállalkozó szellemű vevőknek mivel a településen jelenleg nincs iparűzési adó,
így ez nagymértékben megkönnyíti a vállalkozások, cégek fenntartását. Az
ingatlan központi elhelyezkedésű, Iskola, óvoda, bolt, virágbolt, bank,
Polgármester hivatal mind 300 méteren belül találhatóak. Amennyiben felkeltette
érdeklődését, hívja a os számot.
INGATLAN, ami 600 nm-es épület, 1396 nm-es telekkel. Az épület alkalmas
Vendéglőnek, Lakodalmas háznak, Discónak vagy akár átalakítható egy hatalmas
munkásszállásnak! Jelen pillanatban most is üzemel minimálisan vendéglőként. A
ház szép zöld övezetben, nyugodt csendes utcában van. A ház 1980-es évek elején
épült, beton alappal és tégla falazattal. A rengeteg kis és nagy helyiség van.
Több terem méretű helyiség, ipari méretű konyha, tároló, hűtőkamra, alagsori
hatalmas bulihelyiség bárpulttal, egy komplett vendéglő még egy bárpulttal, két
külön épület ami pluszban kialakítható lakrészeknek, hatalmas terasz és több
mellékhelyiség kívül belül, valamint egy fürdőszoba. Az épület a méretéből
adódóan megosztható, így további lehetőségeket rejtve magában. Bátran ajánlom
vállalkozó szellemű vevőknek mivel a településen jelenleg nincs iparűzési adó,
így ez nagymértékben megkönnyíti a vállalkozások, cégek fenntartását. Az
ingatlan központi elhelyezkedésű, Iskola, óvoda, bolt, virágbolt, bank,
Polgármester hivatal mind 300 méteren belül találhatóak. Amennyiben felkeltette
érdeklődését, hívja a os számot.
Részletek...
Adatlap
| Ár: | 280.000.000 Ft |
| Település: | Újlengyel |
| A hirdető: | Ingatlanirodáktól |
| Értékesítés típusa: | Eladó |
| Tipus: | Üzlet |
| Épület hasznos területe (m2) : | 600 |
| Feladás dátuma: | 2025.12.25 |
| Eddig megtekintették 28 alkalommal | |
A hirdető adatai
Kapcsolat a hirdetővel...
Eladó üzleti ingatlanok rovaton belül a(z) "Eladó 600 nm-es Üzlet Újlengyel" című hirdetést látja. (fent)









