
Eladó 92m2-es Téglalakás, Győr
Szitásdomb II emeltszintű fűtéskész átadással épülő, 3 szintes, 25
lakásos új építésű társasházban 43,92 m2 - 98,71 m2 közötti alapterületű
téglalakások zárt udvari kocsibeálló és garázs vásárlási lehetőséggel eladók.
Esztétikus, modern megjelenés. A földszintiek terasszal kertkapcsolattal
rendelkeznek, emeletiek erkéllyel, és a penthouse szint nagy teraszokkal
rendelkezik. Magas műszaki tartalom: hőszivattyús fűtés, padló fűtés mennyezeti
hűtés. Fűtéskész átadás 2025 december. A lakások ára 5%-os áfát tartalmaz.A
lakások 20 % önerőtől elhozhatókA városrész közigazgatásilag Vámosszabadihoz
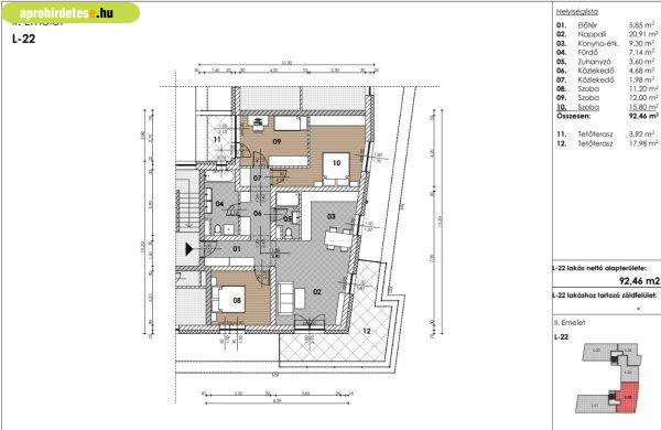
tartozik.L22-es lakás az 2.emeleten helyezkedik el. 92,46 m2-es nappali +
3 szobás, tartozik hozzá egy 17,98 m2 + 3,92 m2 m2-es terasszalA lakás
elosztása: előtér 5,85m2, nappali 20,91 m2, konyha étkező 9,3 m2, zuhanyzó
3,6 m2, fürdő 7,14 m2,közlekedő 6,66 m2, szoba 15,8 m2, szoba 12 m2, szoba 11,2
m2, terasz 17,98 m2, és 3,92 m2Műszaki tartalom:- 50 cm széles vasalt sávalap-
főfalak alatt 40 cm széles koszorú- lábazat Leier zsalukő- felmenő falak
Leiertherm 30 N+F- lakás elválasztó falak Leier monolit betonfalak- válaszfalak
10 cm Leier válaszfal tégla- födém Monolit vasbeton födém -szigetelés:- 1
rétegrend modifikált bitumenes talajnedvesség elleni szigetelés- a talajon
fekvő padlóban 12 cm - homlokzatra 20 cm kerül- lábazatra 18 cm zártcellás
hőszigetelés- nyílászárók kívülről antracit színű, műanyag nyílászárok kerülnek
beépítésre 3 rétegű üvegezéssel. Internorm.- a lépcsőház és a közös terek
festve, burkolva- fűtés központi hőszivattyús fűtés és meleg víz ellátás, egyedi
mérőkkel- padlófűtés és mennyezeti hűtés és fűtésAlacsony rezsi.A belváros pár
perc alatt elérhető.Lakásonkénz 2 gépkocsibeálló megvásárlása szükséges(
önkormányzati előírás)mely 1 M Ft + áfa. Kérdéseivel keressen
bizalommal:Pfeiferné Zsuzsa
lakásos új építésű társasházban 43,92 m2 - 98,71 m2 közötti alapterületű
téglalakások zárt udvari kocsibeálló és garázs vásárlási lehetőséggel eladók.
Esztétikus, modern megjelenés. A földszintiek terasszal kertkapcsolattal
rendelkeznek, emeletiek erkéllyel, és a penthouse szint nagy teraszokkal
rendelkezik. Magas műszaki tartalom: hőszivattyús fűtés, padló fűtés mennyezeti
hűtés. Fűtéskész átadás 2025 december. A lakások ára 5%-os áfát tartalmaz.A
lakások 20 % önerőtől elhozhatókA városrész közigazgatásilag Vámosszabadihoz
tartozik.L22-es lakás az 2.emeleten helyezkedik el. 92,46 m2-es nappali +
3 szobás, tartozik hozzá egy 17,98 m2 + 3,92 m2 m2-es terasszalA lakás
elosztása: előtér 5,85m2, nappali 20,91 m2, konyha étkező 9,3 m2, zuhanyzó
3,6 m2, fürdő 7,14 m2,közlekedő 6,66 m2, szoba 15,8 m2, szoba 12 m2, szoba 11,2
m2, terasz 17,98 m2, és 3,92 m2Műszaki tartalom:- 50 cm széles vasalt sávalap-
főfalak alatt 40 cm széles koszorú- lábazat Leier zsalukő- felmenő falak
Leiertherm 30 N+F- lakás elválasztó falak Leier monolit betonfalak- válaszfalak
10 cm Leier válaszfal tégla- födém Monolit vasbeton födém -szigetelés:- 1
rétegrend modifikált bitumenes talajnedvesség elleni szigetelés- a talajon
fekvő padlóban 12 cm - homlokzatra 20 cm kerül- lábazatra 18 cm zártcellás
hőszigetelés- nyílászárók kívülről antracit színű, műanyag nyílászárok kerülnek
beépítésre 3 rétegű üvegezéssel. Internorm.- a lépcsőház és a közös terek
festve, burkolva- fűtés központi hőszivattyús fűtés és meleg víz ellátás, egyedi
mérőkkel- padlófűtés és mennyezeti hűtés és fűtésAlacsony rezsi.A belváros pár
perc alatt elérhető.Lakásonkénz 2 gépkocsibeálló megvásárlása szükséges(
önkormányzati előírás)mely 1 M Ft + áfa. Kérdéseivel keressen
bizalommal:Pfeiferné Zsuzsa
Részletek...
Adatlap
| Ár: | 95.654.750 Ft |
| Település: | Győr |
| A hirdető: | Ingatlanirodáktól |
| Értékesítés típusa: | Eladó |
| Szobák száma: | 4 |
| Emelet: | 2. emeleti |
| Ingatlan állapota: | Normál állapotú |
| A hirdető kérése: | Ingatlanközvetítő vagyok - keresse fel Irodánkat! |
| Feladás dátuma: | 2025.11.29 |
| Eddig megtekintették 36 alkalommal | |
A hirdető adatai
Kapcsolat a hirdetővel...
Eladó lakások rovaton belül a(z) "Eladó 92m2-es Téglalakás, Győr" című hirdetést látja. (fent)









