
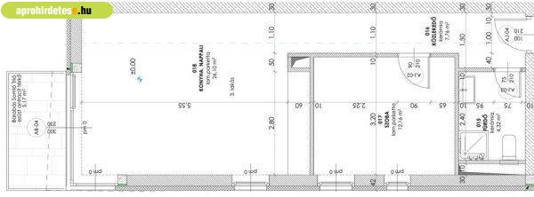
Eladó 52m2-es Téglalakás, Balatonlelle
Exkluzív megjelenés és magas minőség, a szabadstrandtól pár lépés
távolságra. A CITY CARTEL INGATLANIRODA eladásra kínál Balatonlellén, a
Balatontól karnyújtásnyira, egy új építésű, kis lélekszámú, mindössze 10 lakásos
társasházban található, földszinti, 1+1 szobás, 52 m2 lakóterületű, várhatóan
2026 januárban, kulcsrakész állapotban átadásra kerülő tégla lakást. Beosztását
tekintve, egy amerikai konyhás nappali + étkező egy légtérben, egy hálószoba,
egy WC-s, zuhanyzós fürdőszoba, egy közlekedő és egy terasz kerül benne
kialakításra. Értékhatárig választható burkolatok, magas minőségű antracit
színű nyílászárók. Hőszivattyús padlófűtés, mennyezet hűtés. A lakáshoz, zárt
udvari gépkocsibeálló 3.500.000 forintért kötelezően
megvásárolandó. Nyaralónak, állandó lakhatásra egyaránt ajánlott. További
részletes információért forduljon hozzám bizalommal, a hét bármely
napján!Irodáink: 8600 Siófok, Fő tér 6. (Sió Pláza -1. szint)8640 Fonyód, Ady
Endre u. 5. (Balaton Áruház földszint) 8638 Balatonlelle, Rákóczi út
276. Kövess minket Facebook-on is: @citycartelbalaton!
távolságra. A CITY CARTEL INGATLANIRODA eladásra kínál Balatonlellén, a
Balatontól karnyújtásnyira, egy új építésű, kis lélekszámú, mindössze 10 lakásos
társasházban található, földszinti, 1+1 szobás, 52 m2 lakóterületű, várhatóan
2026 januárban, kulcsrakész állapotban átadásra kerülő tégla lakást. Beosztását
tekintve, egy amerikai konyhás nappali + étkező egy légtérben, egy hálószoba,
egy WC-s, zuhanyzós fürdőszoba, egy közlekedő és egy terasz kerül benne
kialakításra. Értékhatárig választható burkolatok, magas minőségű antracit
színű nyílászárók. Hőszivattyús padlófűtés, mennyezet hűtés. A lakáshoz, zárt
udvari gépkocsibeálló 3.500.000 forintért kötelezően
megvásárolandó. Nyaralónak, állandó lakhatásra egyaránt ajánlott. További
részletes információért forduljon hozzám bizalommal, a hét bármely
napján!Irodáink: 8600 Siófok, Fő tér 6. (Sió Pláza -1. szint)8640 Fonyód, Ady
Endre u. 5. (Balaton Áruház földszint) 8638 Balatonlelle, Rákóczi út
276. Kövess minket Facebook-on is: @citycartelbalaton!
Részletek...
Adatlap
| Ár: | 63.990.000 Ft |
| Település: | Balatonlelle |
| A hirdető: | Ingatlanirodáktól |
| Értékesítés típusa: | Eladó |
| Szobák száma: | 2 |
| Komfort: | Összkomfortos |
| Fűtés: | Egyéb fűtéses |
| Emelet: | Földszinti |
| Ingatlan állapota: | Normál állapotú |
| Anyaga: | Tégla |
| A hirdető kérése: | Ingatlanközvetítő vagyok - keresse fel Irodánkat! |
| Feladás dátuma: | 2025.11.29 |
| Eddig megtekintették 19 alkalommal | |
A hirdető adatai
Kapcsolat a hirdetővel...
Eladó lakások rovaton belül a(z) "Eladó 52m2-es Téglalakás, Balatonlelle" című hirdetést látja. (fent)









