
Eladó új építésű lakás, Szeged!
Home&People azonosító: #20901 Marton Laura Vezető referens AMENNYIBEN
KOLLÉGÁNK ELFOGLALT, KÉRJEN VISSZAHÍVÁST A SMS-BEN A es TELEFONSZÁMON AZ
INGATANAZONOSÍTÓ MEGJELÖLÉSÉVEL! ELADÓ ÚJ ÉPÍTÉSŰ LAKÁS, SZEGED! AZ INGATLAN
ALKALMAS CSOK PLUSZ HITEL, CSOK PLUSZ ÉPÍTÉSI HITEL,PIACI LAKÁSHITEL FEDEZETÉNEK
EGYARÁNT!AZ ÁR KULCSRAKÉSZ ÁLLAPOTRA VONATKOZIK! Eladásra kínálom
Szeged-Alsóváros városrészen az alábbi paraméterekkel rendelkező
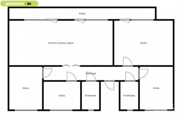
ingatlant:-Ingatlan: 113 nm-Elosztása: amerikai konyhás nappali, 4 db hálószoba,
2 db fürdőszoba, erkély-Hőszivattyús fűtés- Hűtés: mennyezethűtés-Energetika:
BB-Kulcsrakész befejezés: 2025. június- Garázs, beálló vásárolható a
lakáshoz Cégünk az ügyfeleink részére ingyenesen vállalja, a megegyezés sikeres
lebonyolítását, jogi tanácsadást, illetve teljeskörű CSOK és hitelügyintézést!
Kérje ingyenes tájékoztatásunkat! A kínálatában található összes ingatlannal
kapcsolatban felvilágosítást tudunk nyújtani, a Home and People
Ingatlanügynökség szegedi irodájában a Bécsi krt. 18. szám
alatt.Szolgáltatásaink vevőink részére díjmentesek. Home and People akciós
forint HITELEK:*Részletekért és díjmentes kalkulációkért keresse
hitelspecialista kollégánkat:Szalai Gábor Hitelspecialista Irányár: 129.950.000
FtH&P azonosító: #20901
KOLLÉGÁNK ELFOGLALT, KÉRJEN VISSZAHÍVÁST A SMS-BEN A es TELEFONSZÁMON AZ
INGATANAZONOSÍTÓ MEGJELÖLÉSÉVEL! ELADÓ ÚJ ÉPÍTÉSŰ LAKÁS, SZEGED! AZ INGATLAN
ALKALMAS CSOK PLUSZ HITEL, CSOK PLUSZ ÉPÍTÉSI HITEL,PIACI LAKÁSHITEL FEDEZETÉNEK
EGYARÁNT!AZ ÁR KULCSRAKÉSZ ÁLLAPOTRA VONATKOZIK! Eladásra kínálom
Szeged-Alsóváros városrészen az alábbi paraméterekkel rendelkező
ingatlant:-Ingatlan: 113 nm-Elosztása: amerikai konyhás nappali, 4 db hálószoba,
2 db fürdőszoba, erkély-Hőszivattyús fűtés- Hűtés: mennyezethűtés-Energetika:
BB-Kulcsrakész befejezés: 2025. június- Garázs, beálló vásárolható a
lakáshoz Cégünk az ügyfeleink részére ingyenesen vállalja, a megegyezés sikeres
lebonyolítását, jogi tanácsadást, illetve teljeskörű CSOK és hitelügyintézést!
Kérje ingyenes tájékoztatásunkat! A kínálatában található összes ingatlannal
kapcsolatban felvilágosítást tudunk nyújtani, a Home and People
Ingatlanügynökség szegedi irodájában a Bécsi krt. 18. szám
alatt.Szolgáltatásaink vevőink részére díjmentesek. Home and People akciós
forint HITELEK:*Részletekért és díjmentes kalkulációkért keresse
hitelspecialista kollégánkat:Szalai Gábor Hitelspecialista Irányár: 129.950.000
FtH&P azonosító: #20901
Részletek...
Adatlap
| Ár: | 129.950.000 Ft |
| Település: | Szeged |
| A hirdető: | Ingatlanirodáktól |
| Értékesítés típusa: | Eladó |
| Használtság: | Új építésű |
| Utca: | |
| Alapterület (m2) : | 113 |
| Szobák száma: | 5 |
| Anyaga: | Tégla |
| Feladás dátuma: | 2025.12.29 |
| Eddig megtekintették 33 alkalommal | |
A hirdető adatai
Kapcsolat a hirdetővel...
Eladó lakások rovaton belül a(z) "Eladó új építésű lakás, Szeged!" című hirdetést látja. (fent)









