
Eladó 108 nm-es Új építésű Téglalakás Budapest XII. kerület
VIRÁNYOS VILLAPARK - PRÉMIUM OTTHONOK!Elindult a Virányos Villapark épülő
lakásainak értékesítése! Részletes információk, alaprajzok, parkolóhelyek,
tárolók a viranyosvillapark oldalon! Várható átadás: 2026. 3. negyedév!A
Virányos Villapark Budapest 12. kerületében, a budai Széll Kálmán térhez közel,
mégis csendes környezetben elhelyezkedő prémium minőségű lakópark. A hirdetésben
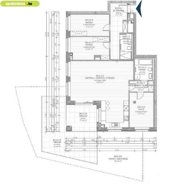
szereplő lakás, a D épület földszintjén helyezkedik el, ÉNY tájolással, 108.55
m2 alapterülettel, mely életteret tovább növeli a 45.36 m2 alapterületű terasz
és a 56.30 m2 területű privát kert. A lakás helyiségei: Előszoba, Szoba,
Amerikai konyhás nappali, Szoba, Fürdőszoba, Fürdőszoba, Közlekedő-Gardrób,
Kamra.A Villaparkban 60-175m2 közötti, N + 1-2-3-4 szobás, kertes, teraszos,
erkélyes, tágas tetőteraszos, valamint duplex és penthouse lakások közül
választhat. Az elérhető lakásokról érdeklődjön telefonon! A kiválasztott
lakáshoz mélygarázs beálló hely és tároló vásárlása kötelező. További beálló
helyek és tárolók a készlet erejéig vásárolhatóak.A villapark főbb jellemzői:
parkosított, öntözőrendszerrel ellátott közös kert, csendes környezet,
változatos lakás-, terasz- és kertméretek, tágas, napfényes lakások.A lakások
műszaki jellemzői: megújuló energiával előállított hatékony, hőszivattyús
hűtő-fűtő rendszer, padlófűtés és mennyezeti fan-coil hűtés a maximális komfort
érzetért, lakásonként kialakított hővisszanyerős szellőztetőrendszer az állandó
friss levegő biztosításáért, magas minőségű alumínium nyílászárók 3 rétegű
üvegezéssel a kiváló hő- és hangszigetelésért, árnyékoló rendszer az optimális
fényviszonyok eléréséért, audió-videó kaputelefon, személyre szabható okosotthon
rendszer előkészítés, amely lehetővé teszi a lakás teljeskörű vezérlését.Az
ingatlan közvetlen környezetében számos magánóvoda és általános iskola,
gimnázium található. Bevásárlási lehetőségként a Budagyöngye Bevásárlóközpont és
a szintén közeli Mammut Bevásárló- és Szórakoztató Központ is rendelkezésre áll.
A Virányos Villapark tömegközlekedési eszközzel is könnyen megközelíthető, az
56-os, 59-es, 61-es villamosok, a 22-es, 91-es, 155-ös és 156-os buszok megállói
pár perc sétatávolságra találhatók.
lakásainak értékesítése! Részletes információk, alaprajzok, parkolóhelyek,
tárolók a viranyosvillapark oldalon! Várható átadás: 2026. 3. negyedév!A
Virányos Villapark Budapest 12. kerületében, a budai Széll Kálmán térhez közel,
mégis csendes környezetben elhelyezkedő prémium minőségű lakópark. A hirdetésben
szereplő lakás, a D épület földszintjén helyezkedik el, ÉNY tájolással, 108.55
m2 alapterülettel, mely életteret tovább növeli a 45.36 m2 alapterületű terasz
és a 56.30 m2 területű privát kert. A lakás helyiségei: Előszoba, Szoba,
Amerikai konyhás nappali, Szoba, Fürdőszoba, Fürdőszoba, Közlekedő-Gardrób,
Kamra.A Villaparkban 60-175m2 közötti, N + 1-2-3-4 szobás, kertes, teraszos,
erkélyes, tágas tetőteraszos, valamint duplex és penthouse lakások közül
választhat. Az elérhető lakásokról érdeklődjön telefonon! A kiválasztott
lakáshoz mélygarázs beálló hely és tároló vásárlása kötelező. További beálló
helyek és tárolók a készlet erejéig vásárolhatóak.A villapark főbb jellemzői:
parkosított, öntözőrendszerrel ellátott közös kert, csendes környezet,
változatos lakás-, terasz- és kertméretek, tágas, napfényes lakások.A lakások
műszaki jellemzői: megújuló energiával előállított hatékony, hőszivattyús
hűtő-fűtő rendszer, padlófűtés és mennyezeti fan-coil hűtés a maximális komfort
érzetért, lakásonként kialakított hővisszanyerős szellőztetőrendszer az állandó
friss levegő biztosításáért, magas minőségű alumínium nyílászárók 3 rétegű
üvegezéssel a kiváló hő- és hangszigetelésért, árnyékoló rendszer az optimális
fényviszonyok eléréséért, audió-videó kaputelefon, személyre szabható okosotthon
rendszer előkészítés, amely lehetővé teszi a lakás teljeskörű vezérlését.Az
ingatlan közvetlen környezetében számos magánóvoda és általános iskola,
gimnázium található. Bevásárlási lehetőségként a Budagyöngye Bevásárlóközpont és
a szintén közeli Mammut Bevásárló- és Szórakoztató Központ is rendelkezésre áll.
A Virányos Villapark tömegközlekedési eszközzel is könnyen megközelíthető, az
56-os, 59-es, 61-es villamosok, a 22-es, 91-es, 155-ös és 156-os buszok megállói
pár perc sétatávolságra találhatók.
Részletek...
Adatlap
| Ár: | 406.039.200 Ft |
| Település: | XII. kerület |
| A hirdető: | Ingatlanirodáktól |
| Értékesítés típusa: | Eladó |
| Használtság: | Új építésű |
| Utca: | Virányos |
| Alapterület (m2) : | 108 |
| Szobák száma: | 4 |
| Anyaga: | Tégla |
| Feladás dátuma: | 2025.12.19 |
| Eddig megtekintették 34 alkalommal | |
A hirdető adatai
Kapcsolat a hirdetővel...
Eladó lakások rovaton belül a(z) "Eladó 108 nm-es Új építésű Téglalakás Budapest XII. kerület " című hirdetést látja. (fent)









