
Eladó 65 nm-es Újszerű állapotú Téglalakás Budapest XII. ker
Eladó ez a meseszépen, teljeskörűen felújított, igényesen bebútorozott, 1
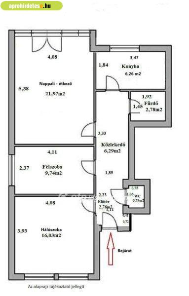
nappali-étkező és 2 hálószobás ingatlan a XII. kerületben, Orbánhegyen, a
Nárcisz utcában. A lakás magasföldszinti az utca felől és 1. emeleti az udvar
felől. A lakás csendes, zöldövezeti környezetben található, ugyanakkor kiváló
közlekedési lehetőség, pár percre a Déli Pályaudvar, MOM Park, Széll Kálmán tér,
nemzetközi iskolák, követségek, óvodák, szórakozási lehetőségek. A tulajdonos
a loggiát beépítette, növelve ezzel a nappali-étkező nagyságát, ugyanakkor
végig, földtől plafonig érő fix ablakokkal és dupla-szárnyú erkélyajtóval
nyitotta meg a teret a panoráma és a zárt, parkosított, játszóteres udvar felé.
A nappaliban ágyazható, ágyneműtartós ülőgarnitúra, étkezőasztal székekkel,
szófával, beépített, pakolható szekrénnyel és szekrénysorral. A félszobában
mindössze egy íróasztal és egy gardrób szekrény található, nyitva hagyva a
lehetőséget, hogy dolgozószobaként vagy gyerekszobaként fog funkcionálni. A
hálószobában ágyneműtartós franciaágy éjjeliszekrényekkel, az egyik falon
gardrób szekrény, a másikon komód szolgálja a leendő bérlő kényelmét. A
fürdőszoba fürdőkádas, mosó-szárítógéppel felszerelt. A konyha beépített, jól
pakolható szekrénnyel, 2 főzőlapos kerámia tűzhellyel, beépített hűtővel,
sütővel, mosogatógéppel, kapszulás kávéfőzővel felszerelt. Az előszobában
szintén beépített szekrény került kialakításra, a kabátoknak, cipőknek.Az
ablakokon függönyök, elektromos, távirányítóval irányítható redőnyökkel minden
helyiségben. Az udvara 1011 m2, zárt, játszótérrel felszerelt. A laminált
parketta vízálló. Nyílászárók, vezetékek kicserélve. Hűtést, fűtést klíma
biztosítja. "H" tarifa kiépítésre került. Parkolás az utcában ingyenes. Az
ingatlan ideális pároknak, gyerekes családoknak is. A kínálatunkból választott
ingatlan finanszírozásához kedvezményes hitelkonstrukciókat kínálunk. Az
adásvételi szerződés megkötéséhez igény szerint megbízható ügyvédi közreműködést
biztosítunk, és segítséget nyújtunk az adásvételhez kapcsolódó ügyek
intézéséhez. Amennyiben felkeltette érdeklődését, szívesen állok rendelkezésére,
a hét minden napján!Thank you for your interest in my ad!This beautifully
renovated and tastefully furnished property with a living-dining room and two
bedrooms is available for sale in the 12th district on Orbán Hill, on Nárcisz
Street. The apartment is located on the ground floor from the street side and on
the first floor from the courtyard side. It is in a quiet, green area yet offers
excellent transport links, just a few minutes away from Déli Railway Station,
MOM Park, Széll Kálmán Square, international schools, embassies, kindergartens,
and entertainment options.The owner has extended the loggia to enlarge the
living-dining area and opened up the space with floor-to-ceiling fixed windows
and a double balcony door overlooking the panoramic view and the enclosed,
landscaped courtyard with a playground. In the living room, there is a
convertible sofa with storage, a dining table with chairs, an armchair, built-in
cabinets, and storage units. In the half-room, there is only a desk and a
wardrobe, allowing flexibility for it to function as a study or a childrens
room. The bedroom is furnished with a double bed with storage, bedside tables, a
wardrobe on one wall, and a chest of drawers on the other for the tenant?s
convenience. The bathroom has a bathtub and a washer-dryer. The kitchen is
equipped with built-in, ample storage cabinets, a two-burner ceramic stove, a
built-in fridge, an oven, a dishwasher, and a capsule coffee maker. The entryway
also has a built-in closet for coats and shoes.Each room has curtains and
electric, remote-controlled shutters. The 1011 m2 yard is closed and equipped
with a playground. The laminate flooring is waterproof. Windows, doors, and
wiring have been replaced. Heating and cooling are provided by an air
conditioning system, and an "H" tariff setup is installed. Parking is free on
the street. The property is ideal for couples or families with children.Feel
free to call me, and Ill be happy to show it to you!
nappali-étkező és 2 hálószobás ingatlan a XII. kerületben, Orbánhegyen, a
Nárcisz utcában. A lakás magasföldszinti az utca felől és 1. emeleti az udvar
felől. A lakás csendes, zöldövezeti környezetben található, ugyanakkor kiváló
közlekedési lehetőség, pár percre a Déli Pályaudvar, MOM Park, Széll Kálmán tér,
nemzetközi iskolák, követségek, óvodák, szórakozási lehetőségek. A tulajdonos
a loggiát beépítette, növelve ezzel a nappali-étkező nagyságát, ugyanakkor
végig, földtől plafonig érő fix ablakokkal és dupla-szárnyú erkélyajtóval
nyitotta meg a teret a panoráma és a zárt, parkosított, játszóteres udvar felé.
A nappaliban ágyazható, ágyneműtartós ülőgarnitúra, étkezőasztal székekkel,
szófával, beépített, pakolható szekrénnyel és szekrénysorral. A félszobában
mindössze egy íróasztal és egy gardrób szekrény található, nyitva hagyva a
lehetőséget, hogy dolgozószobaként vagy gyerekszobaként fog funkcionálni. A
hálószobában ágyneműtartós franciaágy éjjeliszekrényekkel, az egyik falon
gardrób szekrény, a másikon komód szolgálja a leendő bérlő kényelmét. A
fürdőszoba fürdőkádas, mosó-szárítógéppel felszerelt. A konyha beépített, jól
pakolható szekrénnyel, 2 főzőlapos kerámia tűzhellyel, beépített hűtővel,
sütővel, mosogatógéppel, kapszulás kávéfőzővel felszerelt. Az előszobában
szintén beépített szekrény került kialakításra, a kabátoknak, cipőknek.Az
ablakokon függönyök, elektromos, távirányítóval irányítható redőnyökkel minden
helyiségben. Az udvara 1011 m2, zárt, játszótérrel felszerelt. A laminált
parketta vízálló. Nyílászárók, vezetékek kicserélve. Hűtést, fűtést klíma
biztosítja. "H" tarifa kiépítésre került. Parkolás az utcában ingyenes. Az
ingatlan ideális pároknak, gyerekes családoknak is. A kínálatunkból választott
ingatlan finanszírozásához kedvezményes hitelkonstrukciókat kínálunk. Az
adásvételi szerződés megkötéséhez igény szerint megbízható ügyvédi közreműködést
biztosítunk, és segítséget nyújtunk az adásvételhez kapcsolódó ügyek
intézéséhez. Amennyiben felkeltette érdeklődését, szívesen állok rendelkezésére,
a hét minden napján!Thank you for your interest in my ad!This beautifully
renovated and tastefully furnished property with a living-dining room and two
bedrooms is available for sale in the 12th district on Orbán Hill, on Nárcisz
Street. The apartment is located on the ground floor from the street side and on
the first floor from the courtyard side. It is in a quiet, green area yet offers
excellent transport links, just a few minutes away from Déli Railway Station,
MOM Park, Széll Kálmán Square, international schools, embassies, kindergartens,
and entertainment options.The owner has extended the loggia to enlarge the
living-dining area and opened up the space with floor-to-ceiling fixed windows
and a double balcony door overlooking the panoramic view and the enclosed,
landscaped courtyard with a playground. In the living room, there is a
convertible sofa with storage, a dining table with chairs, an armchair, built-in
cabinets, and storage units. In the half-room, there is only a desk and a
wardrobe, allowing flexibility for it to function as a study or a childrens
room. The bedroom is furnished with a double bed with storage, bedside tables, a
wardrobe on one wall, and a chest of drawers on the other for the tenant?s
convenience. The bathroom has a bathtub and a washer-dryer. The kitchen is
equipped with built-in, ample storage cabinets, a two-burner ceramic stove, a
built-in fridge, an oven, a dishwasher, and a capsule coffee maker. The entryway
also has a built-in closet for coats and shoes.Each room has curtains and
electric, remote-controlled shutters. The 1011 m2 yard is closed and equipped
with a playground. The laminate flooring is waterproof. Windows, doors, and
wiring have been replaced. Heating and cooling are provided by an air
conditioning system, and an "H" tariff setup is installed. Parking is free on
the street. The property is ideal for couples or families with children.Feel
free to call me, and Ill be happy to show it to you!
Részletek...
Adatlap
| Ár: | 134.900.000 Ft |
| Település: | XII. kerület |
| A hirdető: | Ingatlanirodáktól |
| Értékesítés típusa: | Eladó |
| Használtság: | Újszerű |
| Utca: | Zöldövezet |
| Alapterület (m2) : | 65 |
| Szobák száma: | 2 |
| Félszobák száma: | 1 |
| Anyaga: | Tégla |
| Feladás dátuma: | 2026.01.08 |
| Eddig megtekintették 35 alkalommal | |
A hirdető adatai
Kapcsolat a hirdetővel...
Eladó lakások rovaton belül a(z) "Eladó 65 nm-es Újszerű állapotú Téglalakás Budapest XII. ker" című hirdetést látja. (fent)









