
Miskolc belvárosában, a Pátria szolgáltató házban, I. emelet
Miskolc belvárosában, a Pátria szolgáltató házban, I. emeletén saját bejáratú
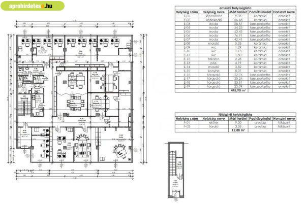
önálló 459 m˛ iroda, üzlethelyiség hosszútávra bérbeadó.Bérleti díj: 990.000
Ft/hó + rezsi +2 havi kaucióAz ingatlan jelenleg 10 irodából, tárgyalóból,
konyhából, vizesblokkokból álló irodahelyiség.Az irodaház földszinti részen
üzletek, étterem, gyógyszertár, találhatóak. A frekventált belvárosi
elhelyezkedés ideális az ingatlan funkciójához, mivel a város jelentős gyalogos
forgalma itt halad el a belváros egyetlen villamos vonalával együtt. A gépjármű
és teherforgalom is megoldott a Kossuth L. út felől, ahol nagyméretű, fizetős
parkoló fekszik.Az épület szomszédságában hasonló jellegű üzletek és
szolgáltatók működnek, melyek nagy forgalmat bonyolító bankok,
biztosítók.Műszaki adatok:- Az ingatlan kialakítása 5,4 m x 5,4 m rács kiosztású
betonoszlopos, melyek között könnyűszerkezetes elválasztó falak lettek
kialakítva, ezért a jelenlegitől eltérő egyéb alternatív hasznosítása kiváló.- A
nyílászárók alumínium szerkezetűek.-A falak festettek, a burkolat járólap és
padlószőnyeg vegyesen.- Az épület a városi távhő szolgáltatással fűtött.A
frekventált elhelyezkedés, és jól alakítható, újszerű belső terek páratlan
lehetőségeket kínálnak az egyéb üzleti célok megvalósítására.Ha az ingatlan
felkeltette az érdeklődését, hívjon bizalommal!
önálló 459 m˛ iroda, üzlethelyiség hosszútávra bérbeadó.Bérleti díj: 990.000
Ft/hó + rezsi +2 havi kaucióAz ingatlan jelenleg 10 irodából, tárgyalóból,
konyhából, vizesblokkokból álló irodahelyiség.Az irodaház földszinti részen
üzletek, étterem, gyógyszertár, találhatóak. A frekventált belvárosi
elhelyezkedés ideális az ingatlan funkciójához, mivel a város jelentős gyalogos
forgalma itt halad el a belváros egyetlen villamos vonalával együtt. A gépjármű
és teherforgalom is megoldott a Kossuth L. út felől, ahol nagyméretű, fizetős
parkoló fekszik.Az épület szomszédságában hasonló jellegű üzletek és
szolgáltatók működnek, melyek nagy forgalmat bonyolító bankok,
biztosítók.Műszaki adatok:- Az ingatlan kialakítása 5,4 m x 5,4 m rács kiosztású
betonoszlopos, melyek között könnyűszerkezetes elválasztó falak lettek
kialakítva, ezért a jelenlegitől eltérő egyéb alternatív hasznosítása kiváló.- A
nyílászárók alumínium szerkezetűek.-A falak festettek, a burkolat járólap és
padlószőnyeg vegyesen.- Az épület a városi távhő szolgáltatással fűtött.A
frekventált elhelyezkedés, és jól alakítható, újszerű belső terek páratlan
lehetőségeket kínálnak az egyéb üzleti célok megvalósítására.Ha az ingatlan
felkeltette az érdeklődését, hívjon bizalommal!
Részletek...
Adatlap
| Ár: | 990.000 Ft |
| Település: | Miskolc |
| A hirdető: | Ingatlanirodáktól |
| Hirdetés típusa: | Kínál |
| Tipus: | Üzlet |
| Használtság: | Használt |
| Épület hasznos területe (m2) : | 459.00 |
| Szobák száma: | 10 |
| Feladás dátuma: | 2026.02.05 |
| Eddig megtekintették 39 alkalommal | |
A hirdető adatai
Kapcsolat a hirdetővel...
Kiadó üzlethelység, üzleti ingatlanok rovaton belül a(z) "Miskolc belvárosában, a Pátria szolgáltató házban, I. emelet" című hirdetést látja. (fent)









