
Eladó 195.00 nm-es Új építésű Családi ház Diósd Központ
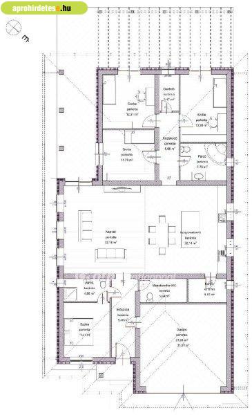
Diósd központjában eladó egy nappali + 4 hálószobás, duplagarázsos, nettó 185
m2-es családi ház 826 m2-es önálló telken.Helyiségek:Amerikai konyhás
nappali 64,3 m2 Szoba 12,6 m2 Szoba 13,9 m2 Szoba 11,8
m2 Szoba 11,3 m2 Gardrób 3,2 m2 Közlekedő 6 m2 Fürdőszoba 7,8
m2 Fürdőszoba 4,7 m2 Mosókonyha 5 m2 Előszoba 8,4 m2 Kamra 4,1
m2 Garázs 31,9 m2 Rövid műszaki tartalom:Tartófalazata 30-as Porotherm
téglából, a válaszfalak 10-es Porotherm téglából készülnek vakolással3 rétegű
barna műanyag ablakok Rejtett redőnytok kialakítva, barna elektromos aluminium
redőny, szúnyogháló15cm homlokzati szigetelés Hideg-meleg burkolatok 10 ezer ft
/ m2-ig választhatók3 db Geberit beépített WCFűtés: Bosch 11 kw hőszivattyú
padlófűtésselRiasztó előkészítésVillanyóra 3 fázissalhőszigetelt elektromos
garázskapu1db kiskapu, 1 db elektromos nagykapuÉpített kerítés színezveA vételár
a kulcsrakész átadásra vonatkozik, amely 2026. tavaszra várható (kiválasztott
anyagok függvénye).A fotók között szerepelnek referencia- és látványképek is!A
hirdetésben szereplő információkat a megbízótól kapott adatok alapján közöltem.
A közelben iskola, óvoda, orvosi rendelő, bevásárlási lehetőségek, gépkocsival
az M0, M1, M6 és M7 autópálya 5 perc alatt elérhető. Vevőinknek szükség esetén
kedvezményes hitelt biztosítunk teljes körű ügyintézéssel! Az adásvételi
szerződés megkötéséhez igény szerint megbízható ügyvédi közreműködést
biztosítunk, és segítséget nyújtunk az adásvételhez kapcsolódó ügyek
intézéséhez. Hívjon bizalommal!
m2-es családi ház 826 m2-es önálló telken.Helyiségek:Amerikai konyhás
nappali 64,3 m2 Szoba 12,6 m2 Szoba 13,9 m2 Szoba 11,8
m2 Szoba 11,3 m2 Gardrób 3,2 m2 Közlekedő 6 m2 Fürdőszoba 7,8
m2 Fürdőszoba 4,7 m2 Mosókonyha 5 m2 Előszoba 8,4 m2 Kamra 4,1
m2 Garázs 31,9 m2 Rövid műszaki tartalom:Tartófalazata 30-as Porotherm
téglából, a válaszfalak 10-es Porotherm téglából készülnek vakolással3 rétegű
barna műanyag ablakok Rejtett redőnytok kialakítva, barna elektromos aluminium
redőny, szúnyogháló15cm homlokzati szigetelés Hideg-meleg burkolatok 10 ezer ft
/ m2-ig választhatók3 db Geberit beépített WCFűtés: Bosch 11 kw hőszivattyú
padlófűtésselRiasztó előkészítésVillanyóra 3 fázissalhőszigetelt elektromos
garázskapu1db kiskapu, 1 db elektromos nagykapuÉpített kerítés színezveA vételár
a kulcsrakész átadásra vonatkozik, amely 2026. tavaszra várható (kiválasztott
anyagok függvénye).A fotók között szerepelnek referencia- és látványképek is!A
hirdetésben szereplő információkat a megbízótól kapott adatok alapján közöltem.
A közelben iskola, óvoda, orvosi rendelő, bevásárlási lehetőségek, gépkocsival
az M0, M1, M6 és M7 autópálya 5 perc alatt elérhető. Vevőinknek szükség esetén
kedvezményes hitelt biztosítunk teljes körű ügyintézéssel! Az adásvételi
szerződés megkötéséhez igény szerint megbízható ügyvédi közreműködést
biztosítunk, és segítséget nyújtunk az adásvételhez kapcsolódó ügyek
intézéséhez. Hívjon bizalommal!
Részletek...
Adatlap
| Ár: | 235.000.000 Ft |
| Település: | Diósd |
| A hirdető: | Ingatlanirodáktól |
| Értékesítés típusa: | Eladó |
| Használtság: | Új építésű |
| Utca: | Központ |
| Telek nagysága (m2) : | 826 |
| Épület hasznos területe (m2) : | 195.00 |
| Szobák száma: | 5 |
| Feladás dátuma: | 2026.04.15 |
| Eddig megtekintették 71 alkalommal | |
A hirdető adatai
Kapcsolat a hirdetővel...
Eladó házak rovaton belül a(z) "Eladó 195.00 nm-es Új építésű Családi ház Diósd Központ " című hirdetést látja. (fent)









