
Eladó 146.00 nm-es Felújított Családi ház Pécs Budai-város
Eladó Pécsett, a belvárostól keletre, a Zsolnay negyed szomszédságában (Budai
Városrész csendes részén) a Fischer Béla utcában egy jelenleg ipari ingatlanként
működő, de nyilvántartás szerint egy kb 140 m2-es lakóház 398 m2-es
telekterületen! Az ingatlan a településközponti vegyes zónába tartozik.
Környezetében főként családi házak találhatók. Az ingatlan a Kulturális Főváros
Projekt fejlesztési területeinek közelségében van.Az utca aszfalt burkolatú, az
ingatlan gyalogosan és gépjárművel jól megközelíthető.A parkolás az utcában
ingyenes.Az ingatlan környezetében az alap kommunális ellátás biztosított.
Iskola, óvoda és egyéb kereskedelmi egységek, üzletközpont 1 km távolságon belül
helyezkednek el.A városközponttól való távolsága kb. 2 km.Elhelyezkedése miatt
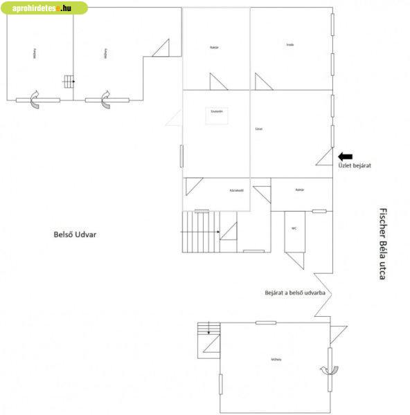
kiváló befektetés.Az ingatlan megközelíthető az átrium üzletház felől. A korábbi
autóvillamossági szervíz tartalmaz egy 70m2-es üzlethelyiséget (eladótér, iroda,
közlekedő, raktár, irattár)valamint három műhelyt (melyek együttes alapterülete
76nm) és egy 180 négyzetméteres belső udvart mely legalább 3 autó tárolására
alkalmas. Ezen kívül garázs is található!Az ingatlan jelenlegi felhasználása,
működési engedély alapján: lakóingatlan de átminősítéssel cégek részére is
hasznosítható lehet.A felépítmény az utcafronti telekhatáron helyezkedik el,
zárt sorú beépítési móddal.Az utcafronttal párhuzamos tetőgerincű nyeregtetővel
fedett, az utcafronton földszintes, épület az 1960-as években épült, a korra
jellemző anyagokkal és technológiával, tégla és kő falazattal. Az épület teljes
felújítására került sor a 2000-es évek elején. Ekkor épült meg az utcafronti
valamint a belső udvarban található további két műhely tégla falazattal.2025-ben
a ház új fürdőszobát és új konyhát kapott, valamint a teljes villamos hálózat
cseréje is megtörtént.Az üzlethelyiség épülete hidegburkolattal, műanyag
nyílászárókkal új cserép tetőszerkezettel lett ellátva. A telek összközműves.
Valamennyi épületben villany és gáz közművek lettek bevezetve. Az épületek
fűtése gáz konvektorral megoldott. Mindhárom műhely gáz konvektorral fűtött, és
billenő garázskapuval lett szerelve, valamint LEDes lámpák gondoskodik a
gazdaságos világításról.Víz és csatorna az üzlethelyiség melletti
mellékhelységben és az utcafronti műhelyben található.A belső udvar teljesen
aszfaltozott, dekorációként 30 éves pálmákkal fehér kavicságyással a kerítés
mentén tujákkal lett díszítve.Az épület alaprajzi elrendezése a képek között
megtalálható.Tehermentes, a teljes vételár megfizetését követően szinte azonnal
birtokba vehető!Hívjon tekintse meg és tegyen egy ajánlatot!
Városrész csendes részén) a Fischer Béla utcában egy jelenleg ipari ingatlanként
működő, de nyilvántartás szerint egy kb 140 m2-es lakóház 398 m2-es
telekterületen! Az ingatlan a településközponti vegyes zónába tartozik.
Környezetében főként családi házak találhatók. Az ingatlan a Kulturális Főváros
Projekt fejlesztési területeinek közelségében van.Az utca aszfalt burkolatú, az
ingatlan gyalogosan és gépjárművel jól megközelíthető.A parkolás az utcában
ingyenes.Az ingatlan környezetében az alap kommunális ellátás biztosított.
Iskola, óvoda és egyéb kereskedelmi egységek, üzletközpont 1 km távolságon belül
helyezkednek el.A városközponttól való távolsága kb. 2 km.Elhelyezkedése miatt
kiváló befektetés.Az ingatlan megközelíthető az átrium üzletház felől. A korábbi
autóvillamossági szervíz tartalmaz egy 70m2-es üzlethelyiséget (eladótér, iroda,
közlekedő, raktár, irattár)valamint három műhelyt (melyek együttes alapterülete
76nm) és egy 180 négyzetméteres belső udvart mely legalább 3 autó tárolására
alkalmas. Ezen kívül garázs is található!Az ingatlan jelenlegi felhasználása,
működési engedély alapján: lakóingatlan de átminősítéssel cégek részére is
hasznosítható lehet.A felépítmény az utcafronti telekhatáron helyezkedik el,
zárt sorú beépítési móddal.Az utcafronttal párhuzamos tetőgerincű nyeregtetővel
fedett, az utcafronton földszintes, épület az 1960-as években épült, a korra
jellemző anyagokkal és technológiával, tégla és kő falazattal. Az épület teljes
felújítására került sor a 2000-es évek elején. Ekkor épült meg az utcafronti
valamint a belső udvarban található további két műhely tégla falazattal.2025-ben
a ház új fürdőszobát és új konyhát kapott, valamint a teljes villamos hálózat
cseréje is megtörtént.Az üzlethelyiség épülete hidegburkolattal, műanyag
nyílászárókkal új cserép tetőszerkezettel lett ellátva. A telek összközműves.
Valamennyi épületben villany és gáz közművek lettek bevezetve. Az épületek
fűtése gáz konvektorral megoldott. Mindhárom műhely gáz konvektorral fűtött, és
billenő garázskapuval lett szerelve, valamint LEDes lámpák gondoskodik a
gazdaságos világításról.Víz és csatorna az üzlethelyiség melletti
mellékhelységben és az utcafronti műhelyben található.A belső udvar teljesen
aszfaltozott, dekorációként 30 éves pálmákkal fehér kavicságyással a kerítés
mentén tujákkal lett díszítve.Az épület alaprajzi elrendezése a képek között
megtalálható.Tehermentes, a teljes vételár megfizetését követően szinte azonnal
birtokba vehető!Hívjon tekintse meg és tegyen egy ajánlatot!
Részletek...
Adatlap
| Ár: | 79.000.000 Ft |
| Település: | Pécs |
| A hirdető: | Ingatlanirodáktól |
| Értékesítés típusa: | Eladó |
| Használtság: | Használt |
| Telek nagysága (m2) : | 398 |
| Épület hasznos területe (m2) : | 146.00 |
| Szobák száma: | 5 |
| Ingatlan állapota: | Felújított |
| Feladás dátuma: | 2026.02.04 |
| Eddig megtekintették 51 alkalommal | |
A hirdető adatai
Kapcsolat a hirdetővel...
Eladó házak rovaton belül a(z) "Eladó 146.00 nm-es Felújított Családi ház Pécs Budai-város " című hirdetést látja. (fent)









