
Keszthelyen új építésű lakóépület eladó
A Gold Balaton Home Ingatlaniroda megvételre kínálja a 2400 46845-ös sorszámú
KESZTHELY KERTVÁROSI LAKÁST.Az építtető jó nevű környékbeli cég, akik több éve
építenek házakat a legjobb minőségben és modern kivitelezésben. A KÉTLAKÁSOS
LAKÓÉPÜLET várható átadása 2026 év közepe. Kamattámogatott hitel,
illetékmentesség, CSOK igénybe vehetőEgyszintes nívós 104 nm-es LAKÁS 21 nm-es
terasszal, tereprendezett, 520 nm-es körbekerített kerttel, GARÁZZSAL,
TÉRKÖVEZETT PARKOLÓHELLYEL eladó.A Hévízi-tótól 3 000 méterre, a Balatontól 5
000 méterre helyezkedik el.Műszaki paraméterek: - 2024-ben épül téglából, minden
vonatkozásban: tető, aljzat, homlokzati falak ? kiválóan hőszigeteltek-
Porotherm 30 cm-es tégla falazat 20 cm-es hőszigeteléssel, a födém ? 30 cm-es
hőszigeteléssel, a tető cseréppel fedett, színes ereszcsatorna és lefolyók-
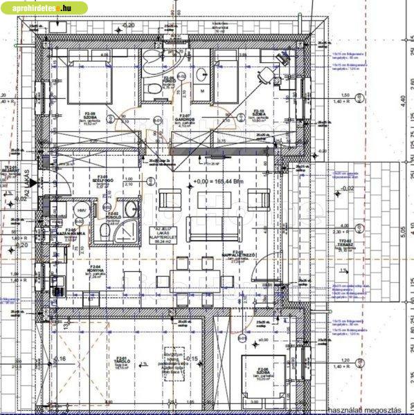
alapterület: 104 nm, kizárólagos használatú telekrész 520 nm- földszintes
teraszos házrész helyiségei: szélfogó, zuhanyzó +WC, nappali ? étkező, konyha,
kazán-kamra, gardrób, fürdőszoba káddal, mosdóval, WC-vel, 3 szoba, garázs,
terasz- fokozott légzárású műanyag nyílászárók 3 rétegű üveggel, kívül színes,
belül fehér színű, karcmentes CPL borítású belső ajtók, távkapcsolóval
működtethető alumínium redőny és beépített szúnyogháló- fűtés: hőszivattyú,
padlófűtés, hűtő-fűtő klíma- a meleg vizet villanybojler szolgáltatja- 1 db hűtő
? fűtő klímaberendezés biztosított- kedvező fenntartási költségek- kulcsrakész
állapot, tereprendezett, bekerített udvar.Az ingatlan egyéb jellemzői: - a
hirdetésben szereplő ár egy előre kalkulált ár, amely változhat a tulajdonos
igényeitől függően. A minimál stílusú, világos belső terekkel rendelkező otthon
új tulajdonosának lehetősége van a céggel való egyeztetés alapján a burkolatok,
szaniterek, villamos szerelvények, végleges falszín valamint a beltéri ajtók
kiválasztására.- a külső megjelenésben (tető, homlokzat, színek, stb.) ügyfél
általi változtatás nem lehetséges- van lehetőség ügyfél általi egyedi belső
befejezésre is- az ár kulcsrakész állapotra érvényes, bútorok és lámpatestek
nélkülAz ingatlan akár állandó lakhatásra és nyaralásra is jó választás, de
befektetésnek is kitűnő lehetőség! Amennyiben hirdetésem felkeltette
érdeklődését, kérem, keressen bizalommal.Irodánk szolgáltatásai igény esetén:
ügyvéd, energetikai tanúsítvány, hitelügyintézés, értékbecslés, statikus,
földmérő, belsőépítészBiztonság, szakértelem - GOLD BALATON HOME - ?Élj ott,
ahol mások nyaralnak?
KESZTHELY KERTVÁROSI LAKÁST.Az építtető jó nevű környékbeli cég, akik több éve
építenek házakat a legjobb minőségben és modern kivitelezésben. A KÉTLAKÁSOS
LAKÓÉPÜLET várható átadása 2026 év közepe. Kamattámogatott hitel,
illetékmentesség, CSOK igénybe vehetőEgyszintes nívós 104 nm-es LAKÁS 21 nm-es
terasszal, tereprendezett, 520 nm-es körbekerített kerttel, GARÁZZSAL,
TÉRKÖVEZETT PARKOLÓHELLYEL eladó.A Hévízi-tótól 3 000 méterre, a Balatontól 5
000 méterre helyezkedik el.Műszaki paraméterek: - 2024-ben épül téglából, minden
vonatkozásban: tető, aljzat, homlokzati falak ? kiválóan hőszigeteltek-
Porotherm 30 cm-es tégla falazat 20 cm-es hőszigeteléssel, a födém ? 30 cm-es
hőszigeteléssel, a tető cseréppel fedett, színes ereszcsatorna és lefolyók-
alapterület: 104 nm, kizárólagos használatú telekrész 520 nm- földszintes
teraszos házrész helyiségei: szélfogó, zuhanyzó +WC, nappali ? étkező, konyha,
kazán-kamra, gardrób, fürdőszoba káddal, mosdóval, WC-vel, 3 szoba, garázs,
terasz- fokozott légzárású műanyag nyílászárók 3 rétegű üveggel, kívül színes,
belül fehér színű, karcmentes CPL borítású belső ajtók, távkapcsolóval
működtethető alumínium redőny és beépített szúnyogháló- fűtés: hőszivattyú,
padlófűtés, hűtő-fűtő klíma- a meleg vizet villanybojler szolgáltatja- 1 db hűtő
? fűtő klímaberendezés biztosított- kedvező fenntartási költségek- kulcsrakész
állapot, tereprendezett, bekerített udvar.Az ingatlan egyéb jellemzői: - a
hirdetésben szereplő ár egy előre kalkulált ár, amely változhat a tulajdonos
igényeitől függően. A minimál stílusú, világos belső terekkel rendelkező otthon
új tulajdonosának lehetősége van a céggel való egyeztetés alapján a burkolatok,
szaniterek, villamos szerelvények, végleges falszín valamint a beltéri ajtók
kiválasztására.- a külső megjelenésben (tető, homlokzat, színek, stb.) ügyfél
általi változtatás nem lehetséges- van lehetőség ügyfél általi egyedi belső
befejezésre is- az ár kulcsrakész állapotra érvényes, bútorok és lámpatestek
nélkülAz ingatlan akár állandó lakhatásra és nyaralásra is jó választás, de
befektetésnek is kitűnő lehetőség! Amennyiben hirdetésem felkeltette
érdeklődését, kérem, keressen bizalommal.Irodánk szolgáltatásai igény esetén:
ügyvéd, energetikai tanúsítvány, hitelügyintézés, értékbecslés, statikus,
földmérő, belsőépítészBiztonság, szakértelem - GOLD BALATON HOME - ?Élj ott,
ahol mások nyaralnak?
Részletek...
Adatlap
| Ár: | 109.900.000 Ft |
| Település: | Keszthely |
| A hirdető: | Ingatlanirodáktól |
| Értékesítés típusa: | Eladó |
| Használtság: | Új építésű |
| Telek nagysága (m2) : | 520 |
| Épület hasznos területe (m2) : | 104.00 |
| Szobák száma: | 2 |
| Félszobák száma: | 2 |
| Feladás dátuma: | 2026.04.15 |
| Eddig megtekintették 46 alkalommal | |
A hirdető adatai
Kapcsolat a hirdetővel...
Eladó házak rovaton belül a(z) "Keszthelyen új építésű lakóépület eladó" című hirdetést látja. (fent)






