
Szolnokon Partoskápolna városrészben eladó egy 105 nm-es csa
A szolnoki CasaNetWork Ingatlaniroda eladásra kínál Szolnokon , Partoskápolna
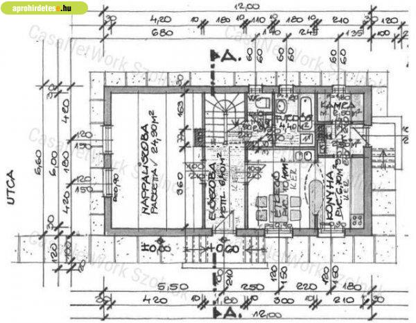
városrészben 105 m2-es, 4 szobás családi házat az alábbi paraméterekkel:- telek
mérete: 533 m2,- az épület 105 m2-es, 4 szobás,- a földszinten nappali 24,9 m2,
étkező 10,4 m2, konyha 6,7 m2, fürdőszoba 4,4 m2 + WC 1 m2,- az alsó épületben
ki lett alakítva egy 20 m2-es szoba, közvetlen bejárással a főépületből,- a
tetőtérben 2 szoba: 13,3 és 16 m2-esek, laminált parkettával borítottak,
valamint van egy külön mosdóhelyiség,- az otthon melegéről egy gázcirkó kazán
gondoskodik,-2022-ben, a külső homlokzat és lábazat megújult, valamint a fa
nyílászárók is felújításra kerültek,- az udvarban található egy 24 m2-es garázs,
valamint egy fedett kiülő.Csendes, nyugodt környezetben elhelyezkedő családi ház
közel van élelmiszerbolthoz, buszmegállóhoz, ajánlom családoknak, akár több
generációnak is. Amennyiben az 155805284 számú eladó szolnoki Családi ház,
vagy bármely a kínálatunkban található ingatlan felkeltette érdeklődését, kérem
hívjon bizalommal!/A hirdetésben szereplő információk a megbízótól kapott adatok
alapján készültek./Irodánk teljeskörű szolgáltatással áll ügyfelei
rendelkezésére: hitelügyintézés, ügyvédi szolgáltatás, ingatlan értékbecslés,
energetikai tanúsítvány készítéseCasaNetWork-Ingatlanban otthon vagyunk!
városrészben 105 m2-es, 4 szobás családi házat az alábbi paraméterekkel:- telek
mérete: 533 m2,- az épület 105 m2-es, 4 szobás,- a földszinten nappali 24,9 m2,
étkező 10,4 m2, konyha 6,7 m2, fürdőszoba 4,4 m2 + WC 1 m2,- az alsó épületben
ki lett alakítva egy 20 m2-es szoba, közvetlen bejárással a főépületből,- a
tetőtérben 2 szoba: 13,3 és 16 m2-esek, laminált parkettával borítottak,
valamint van egy külön mosdóhelyiség,- az otthon melegéről egy gázcirkó kazán
gondoskodik,-2022-ben, a külső homlokzat és lábazat megújult, valamint a fa
nyílászárók is felújításra kerültek,- az udvarban található egy 24 m2-es garázs,
valamint egy fedett kiülő.Csendes, nyugodt környezetben elhelyezkedő családi ház
közel van élelmiszerbolthoz, buszmegállóhoz, ajánlom családoknak, akár több
generációnak is. Amennyiben az 155805284 számú eladó szolnoki Családi ház,
vagy bármely a kínálatunkban található ingatlan felkeltette érdeklődését, kérem
hívjon bizalommal!/A hirdetésben szereplő információk a megbízótól kapott adatok
alapján készültek./Irodánk teljeskörű szolgáltatással áll ügyfelei
rendelkezésére: hitelügyintézés, ügyvédi szolgáltatás, ingatlan értékbecslés,
energetikai tanúsítvány készítéseCasaNetWork-Ingatlanban otthon vagyunk!
Részletek...
Adatlap
| Ár: | 57.000.000 Ft |
| Település: | Szolnok |
| A hirdető: | Ingatlanirodáktól |
| Értékesítés típusa: | Eladó |
| Használtság: | Újszerű |
| Telek nagysága (m2) : | 533 |
| Épület hasznos területe (m2) : | 105.00 |
| Szobák száma: | 4 |
| Fűtés: | Házközponti fűtéses (egyedi méréssel) |
| Feladás dátuma: | 2026.03.26 |
| Eddig megtekintették 28 alkalommal | |
A hirdető adatai
Kapcsolat a hirdetővel...
Eladó házak rovaton belül a(z) "Szolnokon Partoskápolna városrészben eladó egy 105 nm-es csa" című hirdetést látja. (fent)









