
Sámsonkertben, 110 m2-es, N+3 szobás, egyszintes, hőszigetel
Sámsonkert új építésű részén, a Szűcs utca mellett, 2025. év végi átadással,
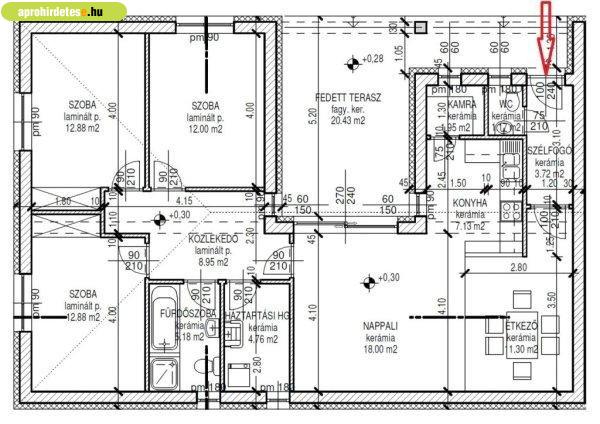
110 m2-es, nappali+ 3 szobás, dupla komfortos ikerház, magas műszaki
tartalommal, 350 m2-es telken eladó!A vételár tartalmazza a
telekárat.Jellemzői:- Értéktartó, csendes környéken helyezkedik el- A ház új
építésű, a belső még igény szerint alakítható- Porotherm 30 N+F tégla falazat-
Beton tetőcserép- Napelem előkészítés- 15 cm Austrotherm AT-H80 hőszigetelés a
homlokzati falakon, mely biztosítja az alacsony fűtési költséget- A tetőtérben
35 cm vastagságú Therwoolin hőszigetelés- 12 cm Austrotherm AT-N100
aljzatszigetelés- A fűtést és a melegvíz ellátását egyedileg beépített, egyedi
mérőhellyel ellátott kondenzációs, turbós kombi kazán biztosítja- A ház
padlófűtéses, mely egyenletes hőeloszlást biztosít, egyben növeli a kondenzációs
kazán hatékonyságát- Hő- és hangszigetelt ablakok: 3 rétegű, 6 légkamrás,
műanyag profilrendszerű, horganyzott idomacél merevítéssel (0,6 W/m2K)-
Elektromos redőny előkészítés- Inverteres, hűtő- fűtő, hőszivattyús klíma (5
kW)- Amerikai konyhás nappali- 2 fürdőszoba- Belső kialakítás flexibilis, az Ön
elképzelése szerint alakítunk ki mindent- Választható burkolatok: Kerámia
burkolat 6 000 Ft/m2-ig, laminált parketta 6 000 Ft/m2-ig a vételárban- 20,43
m2-es terasz- Igény szerint füvesítés, parkosítás, öntözőrendszer, sziklakert,
bográcsozási lehetőség, pergolla, filagória kialakításra kerülhet a költözésre-
Tömegközlekedés kiváló- Iskolához, óvodához, üzletekhez, orvosi rendelőhöz,
patikához közel helyezkedik el!Várható befejezés: 2025. December 31.Babaváró,
illetékmentesség, CSOK+ hitel igénybe vehető a házra!Irányár: 73 MFt
110 m2-es, nappali+ 3 szobás, dupla komfortos ikerház, magas műszaki
tartalommal, 350 m2-es telken eladó!A vételár tartalmazza a
telekárat.Jellemzői:- Értéktartó, csendes környéken helyezkedik el- A ház új
építésű, a belső még igény szerint alakítható- Porotherm 30 N+F tégla falazat-
Beton tetőcserép- Napelem előkészítés- 15 cm Austrotherm AT-H80 hőszigetelés a
homlokzati falakon, mely biztosítja az alacsony fűtési költséget- A tetőtérben
35 cm vastagságú Therwoolin hőszigetelés- 12 cm Austrotherm AT-N100
aljzatszigetelés- A fűtést és a melegvíz ellátását egyedileg beépített, egyedi
mérőhellyel ellátott kondenzációs, turbós kombi kazán biztosítja- A ház
padlófűtéses, mely egyenletes hőeloszlást biztosít, egyben növeli a kondenzációs
kazán hatékonyságát- Hő- és hangszigetelt ablakok: 3 rétegű, 6 légkamrás,
műanyag profilrendszerű, horganyzott idomacél merevítéssel (0,6 W/m2K)-
Elektromos redőny előkészítés- Inverteres, hűtő- fűtő, hőszivattyús klíma (5
kW)- Amerikai konyhás nappali- 2 fürdőszoba- Belső kialakítás flexibilis, az Ön
elképzelése szerint alakítunk ki mindent- Választható burkolatok: Kerámia
burkolat 6 000 Ft/m2-ig, laminált parketta 6 000 Ft/m2-ig a vételárban- 20,43
m2-es terasz- Igény szerint füvesítés, parkosítás, öntözőrendszer, sziklakert,
bográcsozási lehetőség, pergolla, filagória kialakításra kerülhet a költözésre-
Tömegközlekedés kiváló- Iskolához, óvodához, üzletekhez, orvosi rendelőhöz,
patikához közel helyezkedik el!Várható befejezés: 2025. December 31.Babaváró,
illetékmentesség, CSOK+ hitel igénybe vehető a házra!Irányár: 73 MFt
Részletek...
Adatlap
| Ár: | 73.000.000 Ft |
| Település: | Hajdúsámson |
| A hirdető: | Ingatlanirodáktól |
| Értékesítés típusa: | Eladó |
| Használtság: | Újszerű |
| Telek nagysága (m2) : | 350 |
| Épület hasznos területe (m2) : | 110.00 |
| Szobák száma: | 4 |
| Fűtés: | Házközponti fűtéses (egyedi méréssel) |
| Feladás dátuma: | 2026.02.14 |
| Eddig megtekintették 38 alkalommal | |
A hirdető adatai
Kapcsolat a hirdetővel...
Eladó házak rovaton belül a(z) "Sámsonkertben, 110 m2-es, N+3 szobás, egyszintes, hőszigetel" című hirdetést látja. (fent)









