
Kóny - 2 lakrészes családi ház üzlethelyiséggel eladó
Kónyban számos módon hasznosítható, minőségi anyagokból épült 2 lakrészes
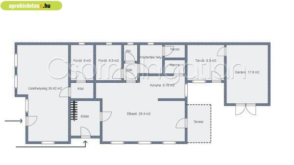
családi ház üzlethelyiséggel eladó.HÁZ I. (280 m2)Üzlethelyiség- utcai bejárat-
kiszolgálótér- fürdőszoba zuhanyzóval- terasz- saját mérőórákkal- fűtés és meleg
víz kombi turbó gázkazán által, a hőleadók radiátorok- napelemrendszerre való
rákötés előkészítveLakóházFöldszint- konyha - nappali + étkező terasz
kapcsolattal- fürdőszoba sarokkáddal, külön helyiségben toalett- háztartási
helyiségekTetőtér- tágas nappali erkéllyel- 2 szoba (egyik erkélyes)- gardrób-
fürdőben sarokkád és zuhanyzó, külön helyiségben toalettMŰSZAKI JELLEMZŐK-
2008-ban épült- Porotherm tégla falazat- 10 cm-es szigetelés- 3 rétegű műanyag
nyílászárók szúnyoghálóval, redőnnyel (a nappaliban elektromos vezérléssel)-
minőségi, osztrák burkolatok, szaniterek- tetőtérben Velux ablakok árnyékolóval
és mennyezeti klíma- fűtés kombi turbó gázkazán által, a hőleadás a földszinten
padlófűtéssel, az emeleten radiátorokkal történik- villanybojler- nappaliban
épült kémény is, fűtésrendszer rákötési lehetőséggel- napelemrendszerre való
rákötés előkészítveHÁZ II. (40 m2)- téglaépítésű- szoba- konyha- fürdő- jelenleg
gázkonvektoros fűtés, de a gázkazán kiépítéséhez a vezetékezés megtörtént- meleg
víz villanybojler általMELLÉKÉPÜLETEK- két házat összekötő 33 m2-es fedett,
térkövezett terasz- ház folytatásában lévő garázs- különálló garázs (aknás,
száraz pincével, elektromos kapuval)TELEK- 1369 m2- betonozott alapon,
tisztítórendszerrel felszerelt merev falu medence- kerti sütő- termő
gyümölcsfák- körbekerített, részben térkövezett, murvázottKÓNYA kb. 2700 lakosú
Kóny 22 km-re fekszik Győrtől az M85-ös gyorsforgalmi út és a Győr?Sopron
vasútvonal mentén- háziorvos, fogászat, gyógyszertár- bölcsőde, óvoda, általános
iskola- posta, boltok stb. helyben megtalálhatóak
családi ház üzlethelyiséggel eladó.HÁZ I. (280 m2)Üzlethelyiség- utcai bejárat-
kiszolgálótér- fürdőszoba zuhanyzóval- terasz- saját mérőórákkal- fűtés és meleg
víz kombi turbó gázkazán által, a hőleadók radiátorok- napelemrendszerre való
rákötés előkészítveLakóházFöldszint- konyha - nappali + étkező terasz
kapcsolattal- fürdőszoba sarokkáddal, külön helyiségben toalett- háztartási
helyiségekTetőtér- tágas nappali erkéllyel- 2 szoba (egyik erkélyes)- gardrób-
fürdőben sarokkád és zuhanyzó, külön helyiségben toalettMŰSZAKI JELLEMZŐK-
2008-ban épült- Porotherm tégla falazat- 10 cm-es szigetelés- 3 rétegű műanyag
nyílászárók szúnyoghálóval, redőnnyel (a nappaliban elektromos vezérléssel)-
minőségi, osztrák burkolatok, szaniterek- tetőtérben Velux ablakok árnyékolóval
és mennyezeti klíma- fűtés kombi turbó gázkazán által, a hőleadás a földszinten
padlófűtéssel, az emeleten radiátorokkal történik- villanybojler- nappaliban
épült kémény is, fűtésrendszer rákötési lehetőséggel- napelemrendszerre való
rákötés előkészítveHÁZ II. (40 m2)- téglaépítésű- szoba- konyha- fürdő- jelenleg
gázkonvektoros fűtés, de a gázkazán kiépítéséhez a vezetékezés megtörtént- meleg
víz villanybojler általMELLÉKÉPÜLETEK- két házat összekötő 33 m2-es fedett,
térkövezett terasz- ház folytatásában lévő garázs- különálló garázs (aknás,
száraz pincével, elektromos kapuval)TELEK- 1369 m2- betonozott alapon,
tisztítórendszerrel felszerelt merev falu medence- kerti sütő- termő
gyümölcsfák- körbekerített, részben térkövezett, murvázottKÓNYA kb. 2700 lakosú
Kóny 22 km-re fekszik Győrtől az M85-ös gyorsforgalmi út és a Győr?Sopron
vasútvonal mentén- háziorvos, fogászat, gyógyszertár- bölcsőde, óvoda, általános
iskola- posta, boltok stb. helyben megtalálhatóak
Részletek...
Adatlap
| Ár: | 139.000.000 Ft |
| Település: | Kóny |
| A hirdető: | Ingatlanirodáktól |
| Értékesítés típusa: | Eladó |
| Használtság: | Újszerű |
| Utca: | . |
| Telek nagysága (m2) : | 1369 |
| Épület hasznos területe (m2) : | 320 |
| Szobák száma: | 6 |
| Komfort: | Duplakomfortos |
| Fűtés: | Gázfűtéses |
| Ingatlan állapota: | Normál állapotú |
| Anyaga: | Tégla |
| A hirdető kérése: | Ingatlanközvetítő vagyok - keresse fel Irodánkat! |
| Feladás dátuma: | 2026.02.04 |
| Eddig megtekintették 37 alkalommal | |
A hirdető adatai
Kapcsolat a hirdetővel...
Eladó házak rovaton belül a(z) "Kóny - 2 lakrészes családi ház üzlethelyiséggel eladó" című hirdetést látja. (fent)









