
Malomsok - 3 szoba nappalis összkomfortos ház eladó
Malomsokon 110 m2-es összkomfortos tégla építésű családi ház 1593 m2-es telken
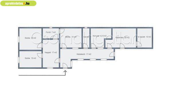
eladó.HELYISÉGEK- 3 külön bejáratú szoba- nappali- konyha + kamra- fürdőben
zuhanykabin- közlekedő- kazánház- melléképületMŰSZAKI JELLEMZŐK- fűtés gáz-, és
vegyes központi kazán által, a hőleadók radiátorok- cserépkályha- 2 új
villanybojler- az ingatlanhoz tartozik egy nyertes napelem pályázat, mely
felszerelése ár és megegyezés kérdése- betongerendás födém- magas beton alap- jó
tetőszerkezet, cserép tetőfedés- új villanyvezetékek- műanyag ablakok, redőnnyel
felszerelve- a közlekedőre az új nyílászárók beszerzésre kerültek, még nincsenek
beépítveTELEK- 2 garázs- melléképületek- gyümölcsfák- fúrt kút-
körbekerítettMALOMSOKA kb. 500 fős település, amely Pápától 18, Téttől 14,
Győrtől 40, Csornától 30 km-re fekszik.A közelében két folyó, a Rába és a Marcal
folyik.- óvoda, védőnő szolgálat- boltok helyben megtalálhatóak- a településen
falusi csok igényelhetőKód: 2849Elérhetőség: 0620/50 111 77
eladó.HELYISÉGEK- 3 külön bejáratú szoba- nappali- konyha + kamra- fürdőben
zuhanykabin- közlekedő- kazánház- melléképületMŰSZAKI JELLEMZŐK- fűtés gáz-, és
vegyes központi kazán által, a hőleadók radiátorok- cserépkályha- 2 új
villanybojler- az ingatlanhoz tartozik egy nyertes napelem pályázat, mely
felszerelése ár és megegyezés kérdése- betongerendás födém- magas beton alap- jó
tetőszerkezet, cserép tetőfedés- új villanyvezetékek- műanyag ablakok, redőnnyel
felszerelve- a közlekedőre az új nyílászárók beszerzésre kerültek, még nincsenek
beépítveTELEK- 2 garázs- melléképületek- gyümölcsfák- fúrt kút-
körbekerítettMALOMSOKA kb. 500 fős település, amely Pápától 18, Téttől 14,
Győrtől 40, Csornától 30 km-re fekszik.A közelében két folyó, a Rába és a Marcal
folyik.- óvoda, védőnő szolgálat- boltok helyben megtalálhatóak- a településen
falusi csok igényelhetőKód: 2849Elérhetőség: 0620/50 111 77
Részletek...
Adatlap
| Ár: | 29.000.000 Ft |
| Település: | Malomsok |
| A hirdető: | Ingatlanirodáktól |
| Értékesítés típusa: | Eladó |
| Használtság: | Használt |
| Utca: | . |
| Telek nagysága (m2) : | 1593 |
| Épület hasznos területe (m2) : | 110 |
| Szobák száma: | 4 |
| Komfort: | Összkomfortos |
| Fűtés: | Házközponti fűtéses |
| Ingatlan állapota: | Normál állapotú |
| Anyaga: | Tégla |
| A hirdető kérése: | Ingatlanközvetítő vagyok - keresse fel Irodánkat! |
| Feladás dátuma: | 2026.02.24 |
| Eddig megtekintették 30 alkalommal | |
A hirdető adatai
Kapcsolat a hirdetővel...
Eladó házak rovaton belül a(z) "Malomsok - 3 szoba nappalis összkomfortos ház eladó" című hirdetést látja. (fent)









