
Liapor "Dalma"kész-házak az okos döntés! Szerkezetkésztől -
Vállaljuk családi házak építését. Alaptól ? Prémiumig Br. 77-286 m2-ig ,
földszintestől-emeletesig, 33 db., nevekkel ellátott, típusházak közül, egyedi
tervezést is, lehet választani! A megadott árban, a telkek nem szerepelnek és
nem meglévő házak! Ajándékkártyák 3-6-9 M. Ft. Típusterves házakra Br. 100-130,
131-160, 161+ m2, fűtéskész állapotúakra! Az ajánlat 2025. június 1. és
augusztus 15. között megkötött szerződésekre vonatkozik, fűtéskész állapottól
induló vásárlás esetén. Oda építjük, meg ahova ön szeretné! Szerkezet késztől
- külső készen - emelt fűtés készen - Kulcsrakész befejezés + lokáció és
kapacitás függvényében! "DALMA" LIAPOR ház típus. Oda építjük, meg ahova ön
szeretné! Szerkezetkésztől - emelt fűtés-kész állapotig! Bruttó 200 m2 beépített
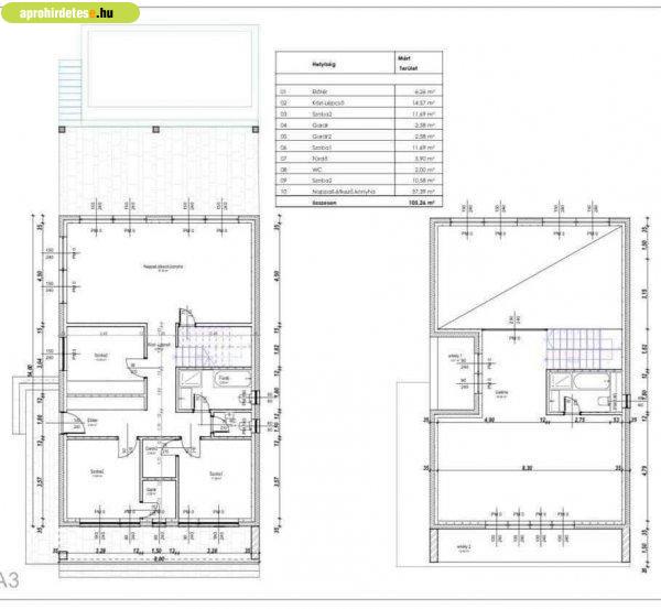
terület, Nettó 160 m2 hasznos alapterület. Nappali + 4 hálószoba, nagy
üvegfelületek, klasszikus formavilág, többféle külső design lehetőség. Ahogy a
legjobban megéri: a ház ára szerkezetkészen: 76.950.000 Ft + áfa Az alapár
tartalmazza: változtatások nélküli terv adaptációt (az esetleges változtatások
extra költségeket jelenthetnek) szigetelt lemezalapot, a külső és belső liapor
falakat 275 cm-es panelmagassággal, elektromos kiállások
előkészítései vízvezetékek helyének horonymarásai tetőszerkezetet, (szeglemezes
rácsos tartós szerkezet) 25 fokig tető héjazatot (betoncserép borítással, Bramac
Római Novo) e-napló vezetését A ház ára külső készen: 93.150.000 Ft + áfa A
ház ára emelt fűtés készen: 125.425.000 Ft + áfa Kulcsrakész befejezés +
lokáció és kapacitás függvényében Az alapár tartalmazza: változtatások nélküli
terv adaptációt (az esetleges változtatások extra költségeket
jelenthetnek) szigetelt lemezalapot, a külső és belső liapor falakat 275 cm-es
panelmagassággal, elektromos kiállások előkészítései vízvezetékek helyének
horonymarásai tetőszerkezetet, (szeglemezes rácsos tartós szerkezet) 25
fokig tető héjazatot (betoncserép borítással, Bramac Római Novo) tető
cserepezést és bádogozást a külső 20 cm-es fehér EPS szigetelést (U=min.
0,17) színezést fehér színre 1,5 mm-es szemcsenagyságú dörzsölt vakolattal
(Polifarbe) ereszcsatornát a tető héjazattal egyező színben nyílászárókat,
(fehér színben, 3 rétegű üvegezéssel. Színes ablakok felár ellenében
rendelhetők) 1 db bejárati ajtót katalógusból 1 db teraszajtó (bukó toló vagy
emelő toló ajtó felár ellenében) e-napló vezetését villanyszerelés
helyiségenként 5 kiállással, szerelvényezéssel vízvezeték
alapszerelést beépíthető WC-k vázát, szerelvényeit (nyomógomb, WC csésze és
ülőke nélkül) gipszkarton álmennyezet egy réteg kartonnal fújt cellulóz födém
hőszigetelés 30 cm vastagságban aljzat betonozás 5 cm vastagságig szabadon
választott fűtés 3.500.000 Ft nettó összegig (elektromos padlófűtés + napelem
vagy levegő/víz hőszivattyús padlófűtés vagy levegő/levegő hőszivattyús fűtés
vagy mennyezetfűtés Emeletes házaknál a betonfödém kivitelezését és a belső
gipszbeton lépcsőket az ár tartalmazza! Az árak nem tartalmazzák: színes
vakolatokat külső homlokzati kőburkolatokat, díszítéseket, 3d elemeket erkély
vagy lépcsőkorlátokat teraszok és külső lépcsők kivitelezését pergolákat,
autóbeállókat tervmódosítások díját világító testeket, lámpákat, bútorokat belső
festést hideg és meleg burkolásokat, szegélyezéseket beltéri
ajtókat szanitereket és csaptelepeket szerelvényezéseket és szerelvényeket belső
ablakpárkányokat A Homes4you Magyarország egyik vezető készház építő vállalata,
mely liapor házak építésével foglalkozik. Ezek árairól egyedi ajánlatot adunk,
az igények felmérése után. Felhívjuk a figyelmet, hogy a teljes kulcsrakész
befejezést nem minden esetben tudunk vállalni! Bővebb tájékoztatás
https://www.homes4you.hu/martina/ ?Mi valóban építünk is, nem csak hirdetünk!
Hívjon most, és nézzük, megy együtt! Ingatlan közvetítés - Biztosítások -
Hitelügyintézés - LIAPOR házépítés! Kérem, hívja a 0670/4534368-as
számot! Hívjon, most és építsük meg álmai házát! A látványtervek a Homes4you
kizárólagos tulajdona, azok engedély nélküli felhasználása
tilos!
földszintestől-emeletesig, 33 db., nevekkel ellátott, típusházak közül, egyedi
tervezést is, lehet választani! A megadott árban, a telkek nem szerepelnek és
nem meglévő házak! Ajándékkártyák 3-6-9 M. Ft. Típusterves házakra Br. 100-130,
131-160, 161+ m2, fűtéskész állapotúakra! Az ajánlat 2025. június 1. és
augusztus 15. között megkötött szerződésekre vonatkozik, fűtéskész állapottól
induló vásárlás esetén. Oda építjük, meg ahova ön szeretné! Szerkezet késztől
- külső készen - emelt fűtés készen - Kulcsrakész befejezés + lokáció és
kapacitás függvényében! "DALMA" LIAPOR ház típus. Oda építjük, meg ahova ön
szeretné! Szerkezetkésztől - emelt fűtés-kész állapotig! Bruttó 200 m2 beépített
terület, Nettó 160 m2 hasznos alapterület. Nappali + 4 hálószoba, nagy
üvegfelületek, klasszikus formavilág, többféle külső design lehetőség. Ahogy a
legjobban megéri: a ház ára szerkezetkészen: 76.950.000 Ft + áfa Az alapár
tartalmazza: változtatások nélküli terv adaptációt (az esetleges változtatások
extra költségeket jelenthetnek) szigetelt lemezalapot, a külső és belső liapor
falakat 275 cm-es panelmagassággal, elektromos kiállások
előkészítései vízvezetékek helyének horonymarásai tetőszerkezetet, (szeglemezes
rácsos tartós szerkezet) 25 fokig tető héjazatot (betoncserép borítással, Bramac
Római Novo) e-napló vezetését A ház ára külső készen: 93.150.000 Ft + áfa A
ház ára emelt fűtés készen: 125.425.000 Ft + áfa Kulcsrakész befejezés +
lokáció és kapacitás függvényében Az alapár tartalmazza: változtatások nélküli
terv adaptációt (az esetleges változtatások extra költségeket
jelenthetnek) szigetelt lemezalapot, a külső és belső liapor falakat 275 cm-es
panelmagassággal, elektromos kiállások előkészítései vízvezetékek helyének
horonymarásai tetőszerkezetet, (szeglemezes rácsos tartós szerkezet) 25
fokig tető héjazatot (betoncserép borítással, Bramac Római Novo) tető
cserepezést és bádogozást a külső 20 cm-es fehér EPS szigetelést (U=min.
0,17) színezést fehér színre 1,5 mm-es szemcsenagyságú dörzsölt vakolattal
(Polifarbe) ereszcsatornát a tető héjazattal egyező színben nyílászárókat,
(fehér színben, 3 rétegű üvegezéssel. Színes ablakok felár ellenében
rendelhetők) 1 db bejárati ajtót katalógusból 1 db teraszajtó (bukó toló vagy
emelő toló ajtó felár ellenében) e-napló vezetését villanyszerelés
helyiségenként 5 kiállással, szerelvényezéssel vízvezeték
alapszerelést beépíthető WC-k vázát, szerelvényeit (nyomógomb, WC csésze és
ülőke nélkül) gipszkarton álmennyezet egy réteg kartonnal fújt cellulóz födém
hőszigetelés 30 cm vastagságban aljzat betonozás 5 cm vastagságig szabadon
választott fűtés 3.500.000 Ft nettó összegig (elektromos padlófűtés + napelem
vagy levegő/víz hőszivattyús padlófűtés vagy levegő/levegő hőszivattyús fűtés
vagy mennyezetfűtés Emeletes házaknál a betonfödém kivitelezését és a belső
gipszbeton lépcsőket az ár tartalmazza! Az árak nem tartalmazzák: színes
vakolatokat külső homlokzati kőburkolatokat, díszítéseket, 3d elemeket erkély
vagy lépcsőkorlátokat teraszok és külső lépcsők kivitelezését pergolákat,
autóbeállókat tervmódosítások díját világító testeket, lámpákat, bútorokat belső
festést hideg és meleg burkolásokat, szegélyezéseket beltéri
ajtókat szanitereket és csaptelepeket szerelvényezéseket és szerelvényeket belső
ablakpárkányokat A Homes4you Magyarország egyik vezető készház építő vállalata,
mely liapor házak építésével foglalkozik. Ezek árairól egyedi ajánlatot adunk,
az igények felmérése után. Felhívjuk a figyelmet, hogy a teljes kulcsrakész
befejezést nem minden esetben tudunk vállalni! Bővebb tájékoztatás
https://www.homes4you.hu/martina/ ?Mi valóban építünk is, nem csak hirdetünk!
Hívjon most, és nézzük, megy együtt! Ingatlan közvetítés - Biztosítások -
Hitelügyintézés - LIAPOR házépítés! Kérem, hívja a 0670/4534368-as
számot! Hívjon, most és építsük meg álmai házát! A látványtervek a Homes4you
kizárólagos tulajdona, azok engedély nélküli felhasználása
tilos!
Részletek...
Adatlap
| Ár: | 76.950.000 Ft |
| Település: | Nyergesújfalu |
| A hirdető: | Ingatlanirodáktól |
| Értékesítés típusa: | Eladó |
| Épület hasznos területe (m2) : | 170 |
| Szobák száma: | 1 |
| Félszobák száma: | 4 |
| Komfort: | Duplakomfortos |
| Fűtés: | Egyéb fűtéses |
| Ingatlan állapota: | Normál állapotú |
| Anyaga: | Tégla |
| A hirdető kérése: | Ingatlanközvetítő vagyok - keresse fel Irodánkat! |
| Feladás dátuma: | 2025.11.26 |
| Eddig megtekintették 27 alkalommal | |
A hirdető adatai
Kapcsolat a hirdetővel...
Eladó házak rovaton belül a(z) "Liapor "Dalma"kész-házak az okos döntés! Szerkezetkésztől - " című hirdetést látja. (fent)









