
Eladó 118m2-es Családi ház, Sződ
Sződ frekventált részén, vasúthoz, M2-es autóúthoz közeli helyen,
csendes, családi házas övezetben egy KIVÁLÓ MINŐSÉGBEN ÉPÜLŐ, NAGYON ALACSONY
ENERGIAFELHASZNÁLÁSÚ, egyszintes családi ház eladó.A lakáshoz 540 m2 saját telek
és udvaron belüli, viacolorral lerakott autóbeálló tartozik.Műszaki
tartalomból:Az ingatlan függőleges teherhordó szerkezetei 30 cm vastagságú
Porotherm téglából készültek, homlokzati szigeteléssel. A tetőt antracitszürke
színű Bramac betoncserép fedi. A fűtési rendszer HŐSZIVATTYÚVAL van kialakítva,
az összes helyiség PADLÓFŰTÉSSEL ellátott. A házban hűtő/fűtő klímák is
beépítésre kerültek. A telken kerti csap kiállás is van!Elrendezés:A lakás
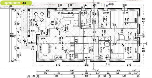
hasznos alapterülete 118 m2, amelybe beletartozik egy amerikai konyhás nappali,
3 szoba, 2 fürdőszoba és egy tároló helyiség.Elhelyezkedés:A település 20 percre
fekszik a fővárostól, 12 percre fekszik Vác barokk belvárosától és az M2-es
autópályáról 5 perc alatt könnyen megközelíthető.A közelben található
buszmegálló, vasútállomás, élelmiszerüzlet, általános iskola, óvoda, bölcsőde,
posta, gyógyszertár, orvosi rendelő, fogászat, bank, pékség, játszótér.Az
ingatlan jelenleg épül, ezért a belső burkolatok és a belső nyílászárók még
szabadon választhatóak a jövendőbeli tulajdonos elképzeléséhez
igazodva.MEGBÍZHATÓ KIVITELEZŐTŐL eladó, aki sok referenciával rendelkezik!Kérem
forduljon hozzám bizalommal, és egyeztessünk megtekintési időpontot!TEKINTSE MEG
IRODÁNK TOVÁBBI KÍNÁLATÁT LOGÓNKRA KATTINTVA.
csendes, családi házas övezetben egy KIVÁLÓ MINŐSÉGBEN ÉPÜLŐ, NAGYON ALACSONY
ENERGIAFELHASZNÁLÁSÚ, egyszintes családi ház eladó.A lakáshoz 540 m2 saját telek
és udvaron belüli, viacolorral lerakott autóbeálló tartozik.Műszaki
tartalomból:Az ingatlan függőleges teherhordó szerkezetei 30 cm vastagságú
Porotherm téglából készültek, homlokzati szigeteléssel. A tetőt antracitszürke
színű Bramac betoncserép fedi. A fűtési rendszer HŐSZIVATTYÚVAL van kialakítva,
az összes helyiség PADLÓFŰTÉSSEL ellátott. A házban hűtő/fűtő klímák is
beépítésre kerültek. A telken kerti csap kiállás is van!Elrendezés:A lakás
hasznos alapterülete 118 m2, amelybe beletartozik egy amerikai konyhás nappali,
3 szoba, 2 fürdőszoba és egy tároló helyiség.Elhelyezkedés:A település 20 percre
fekszik a fővárostól, 12 percre fekszik Vác barokk belvárosától és az M2-es
autópályáról 5 perc alatt könnyen megközelíthető.A közelben található
buszmegálló, vasútállomás, élelmiszerüzlet, általános iskola, óvoda, bölcsőde,
posta, gyógyszertár, orvosi rendelő, fogászat, bank, pékség, játszótér.Az
ingatlan jelenleg épül, ezért a belső burkolatok és a belső nyílászárók még
szabadon választhatóak a jövendőbeli tulajdonos elképzeléséhez
igazodva.MEGBÍZHATÓ KIVITELEZŐTŐL eladó, aki sok referenciával rendelkezik!Kérem
forduljon hozzám bizalommal, és egyeztessünk megtekintési időpontot!TEKINTSE MEG
IRODÁNK TOVÁBBI KÍNÁLATÁT LOGÓNKRA KATTINTVA.
Részletek...
Adatlap
| Ár: | 114.000.000 Ft |
| Település: | Sződ |
| A hirdető: | Ingatlanirodáktól |
| Értékesítés típusa: | Eladó |
| Telek nagysága (m2) : | 540 |
| Épület hasznos területe (m2) : | 118 |
| Szobák száma: | 4 |
| A hirdető kérése: | Ingatlanközvetítő vagyok - keresse fel Irodánkat! |
| Feladás dátuma: | 2025.12.06 |
| Eddig megtekintették 22 alkalommal | |
A hirdető adatai
Kapcsolat a hirdetővel...
Eladó házak rovaton belül a(z) "Eladó 118m2-es Családi ház, Sződ" című hirdetést látja. (fent)









